Квартира в жк "Алые Паруса"
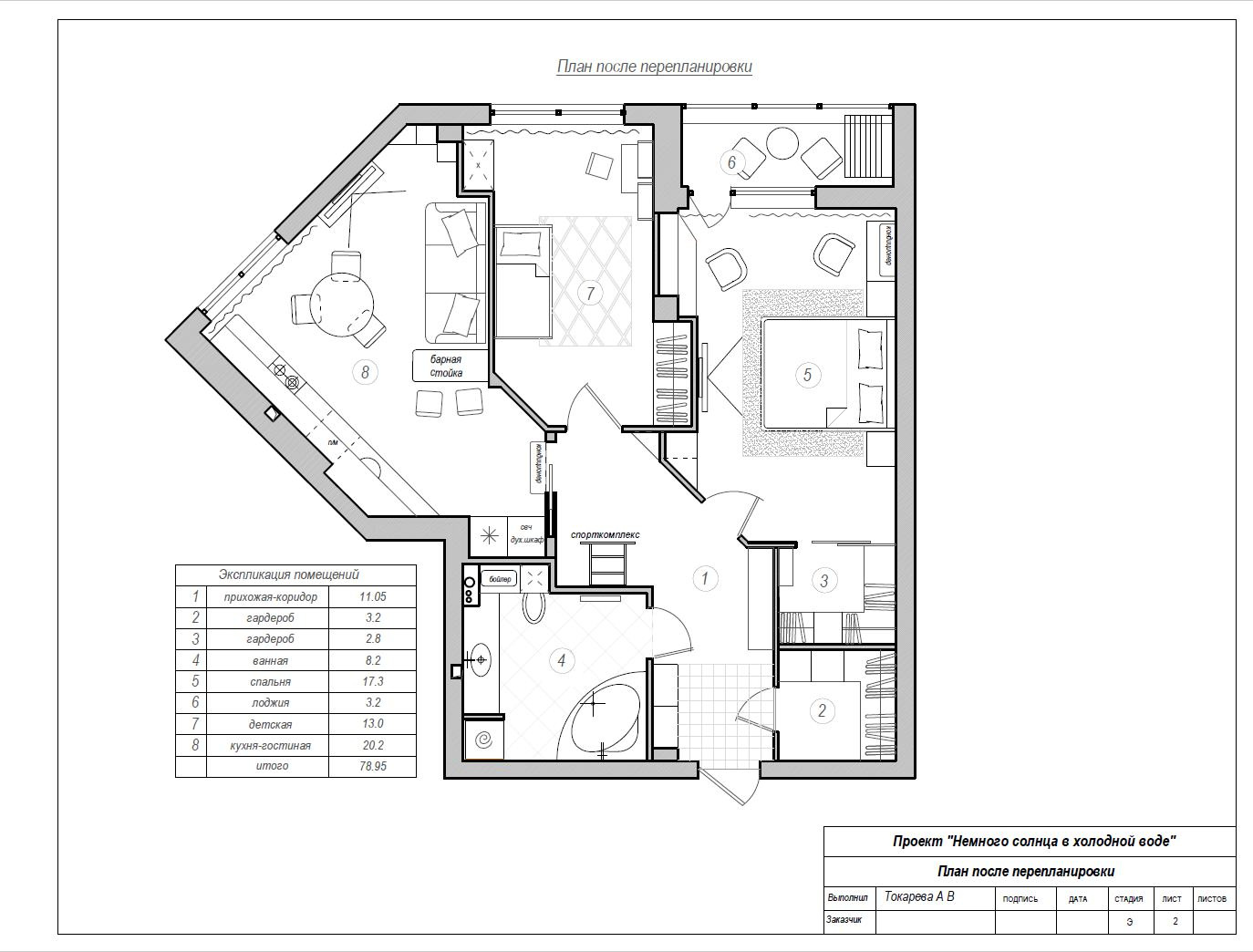
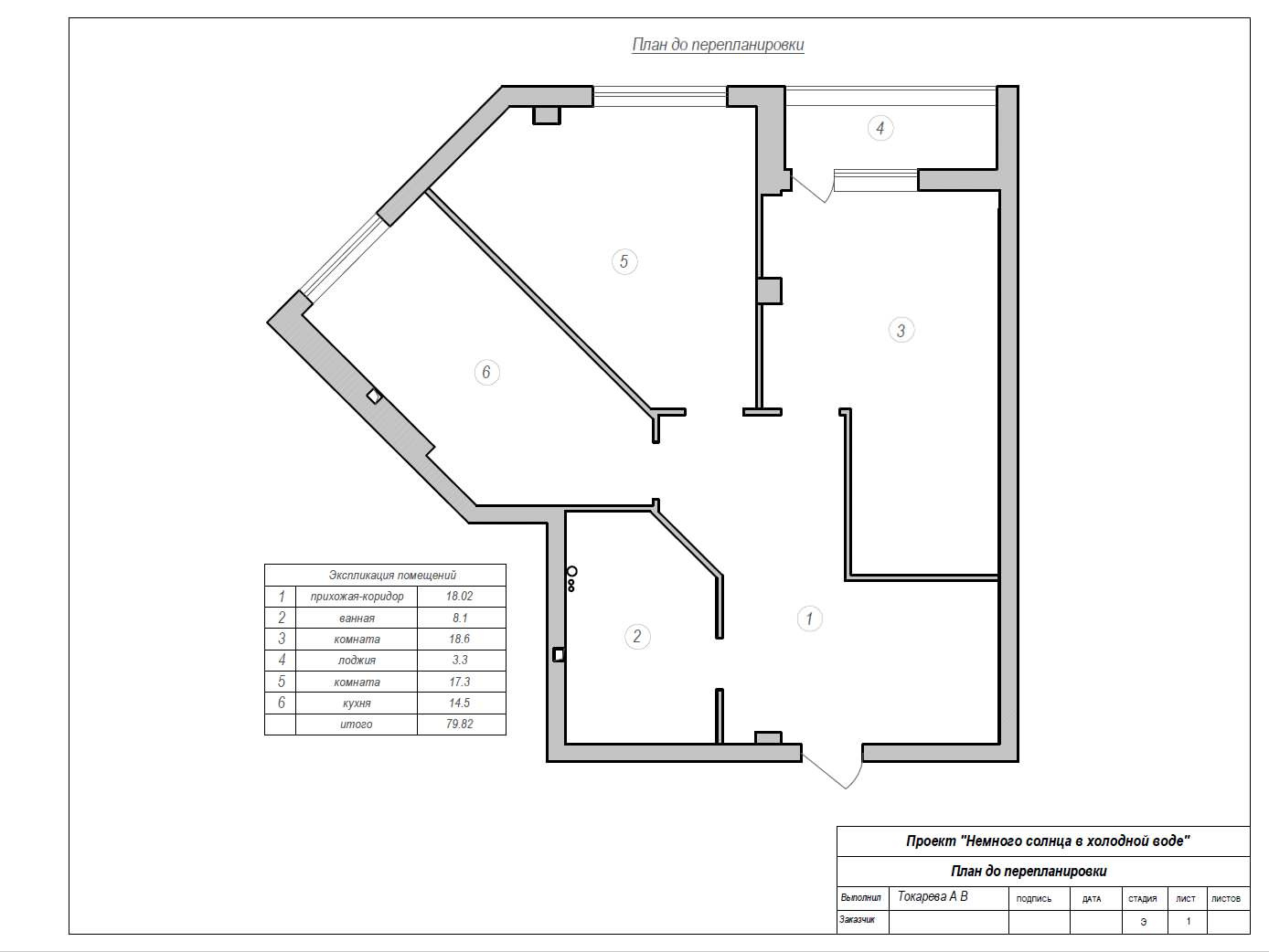
2-х комнатная квартира площадью 80 м2, интерьер проектировался для семьи из 3-х человек: родителей и девочки 5 лет. . . Основная задача была следующая: из 2-х комнатной квартиры сделать 3-х комнатную с таким составом помещений: . - кухня-гостиная с полноценным диваном, барной стойкой и электрокамином, . - изолированная детская, . - спальня с выходом на балкон, большой кроватью, рабочим местом и гардеробной, . - большая ванная комната с угловой купелью. . Обязательное условие - согласовать перепланировку в архитектуре. . . В результате работы все условия были выполнены, поместилось все, что нужно и даже немного больше), планировку согласовали! Плюс ко всему удалось выкроить место под вторую гардеробную-кладовую для хозяйственных нужд. . . Часть помещений получилась сложной формы, но все углы и ниши обыграли мебелью на заказ: это встроенный шкаф в детской, стеллажи, рабочий стол. Каждый сантиметр используется по максимуму и визуально пространство выглядит цельным и гармоничным!
29 фотографий





























