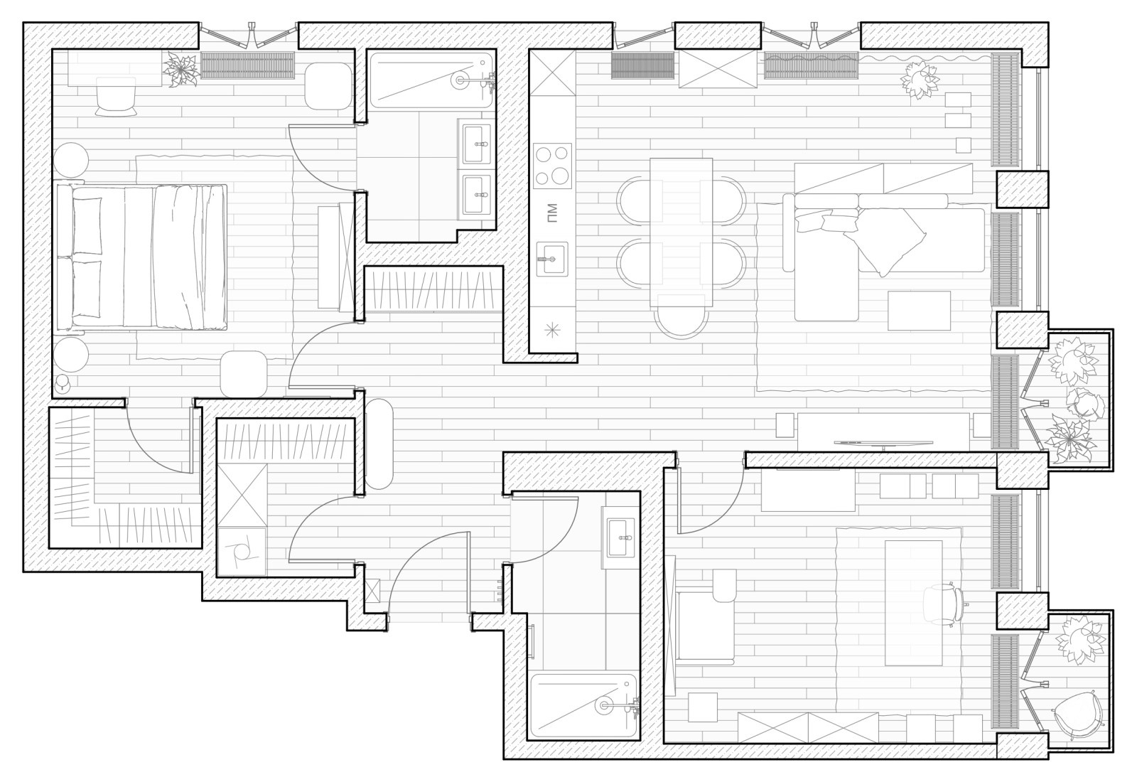
Квартира в центре Москвы, 93 м²
Квартира с отделкой от застройщика, которую клиенты предпочли оставить без изменения, весь интерьер создавался в пределах существующих стен
Год реализации: 2023
г. Москва
16 фотографий
Квартира с отделкой от застройщика, которую клиенты предпочли оставить без изменения, весь интерьер создавался в пределах существующих стен
16 фотографий
