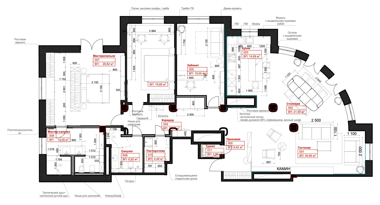
Квартира в Покровском-Стрешнево
Квартира в элитном жилом комплексе в районе Покровское - Стрешнево
Год реализации: 2022
Стоимость проектирования: 1 050 000 ₽
г. Москва
25 фотографий
Квартира в элитном жилом комплексе в районе Покровское - Стрешнево
25 фотографий
