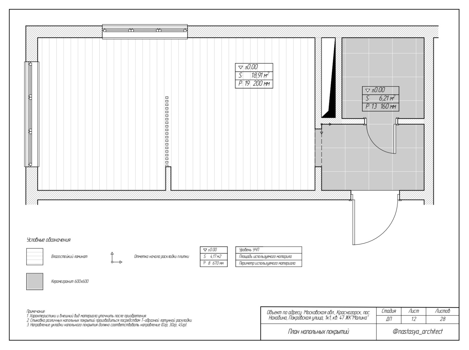
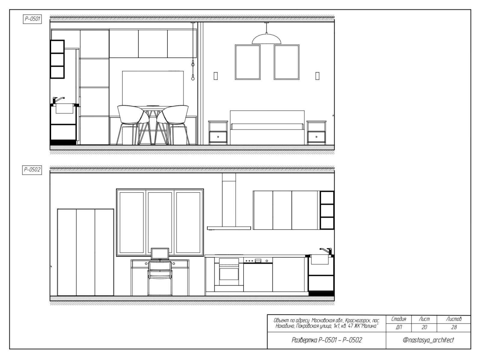
Профиль пользователяКвартира в Нахабино под ключГод реализации: 2021Стоимость проектирования: 34 999 ₽35 фотографийПоделитьсяСохранитьВ фотопотокеВ фотопотокеРеечная перегородка вмонтированная в натяжной потолокПоделитьсяСохранитьВ фотопотокеВ фотопотокеРеечная перегородка вмонтированная в натяжной потолокПоделитьсяСохранитьВ фотопотокеВ фотопотокеФото с/уПоделитьсяСохранитьВ фотопотокеВ фотопотокеФото с/уПоделитьсяСохранитьВ фотопотокеВ фотопотокеФото с/уПоделитьсяСохранитьВ фотопотокеВ фотопотокеФото спальнойПоделитьсяСохранитьВид из прихожейПоделитьсяСохранитьСводная карта отделкиПоделитьсяСохранитьВедомость мебелиПоделитьсяСохранитьВедомость мебелиПоделитьсяСохранитьВедомость мебелиПоделитьсяСохранитьВедомость мебелиПоделитьсяСохранитьВедомость мебелиПоделитьсяСохранитьВедомость мебелиПоделитьсяСохранитьПлан мебелиПоделитьсяСохранитьРазвертка общаяПоделитьсяСохранитьРазвертка спальнойПоделитьсяСохранитьРазвертка кухни-столовойПоделитьсяСохранитьРазвертка с/уПоделитьсяСохранитьРазвертка прихожейПоделитьсяСохранитьПлан разметкиПоделитьсяСохранитьПлан водоснабжения и канализацииПоделитьсяСохранитьПлан отопленияПоделитьсяСохранитьПлан половПоделитьсяСохранитьПлан электроустановокПоделитьсяСохранитьПлан выключателейПоделитьсяСохранитьВедомость освещенияПоделитьсяСохранитьВедомость освещенияПоделитьсяСохранитьПлан освещенияПоделитьсяСохранитьПлан потолкаПоделитьсяСохранитьПлан монтажаПоделитьсяСохранитьПланировочное решениеПоделитьсяСохранитьЭскиз-планПоделитьсяСохранитьПояснительня запискаПоделитьсяСохранитьОбложка проектаПоделитьсяСохранить