Квартира в Московском
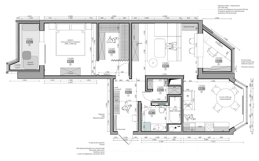
Квартира расположена в типовом панельном доме серии П44-Т. Задачей студии было превратить типовую панельную "двушку" в стильное и современное жилище для молодого студента. . .
Год реализации: 2018
Стоимость проектирования: 275 000 ₽
27 фотографий




























