Квартира в Арбатских переулках
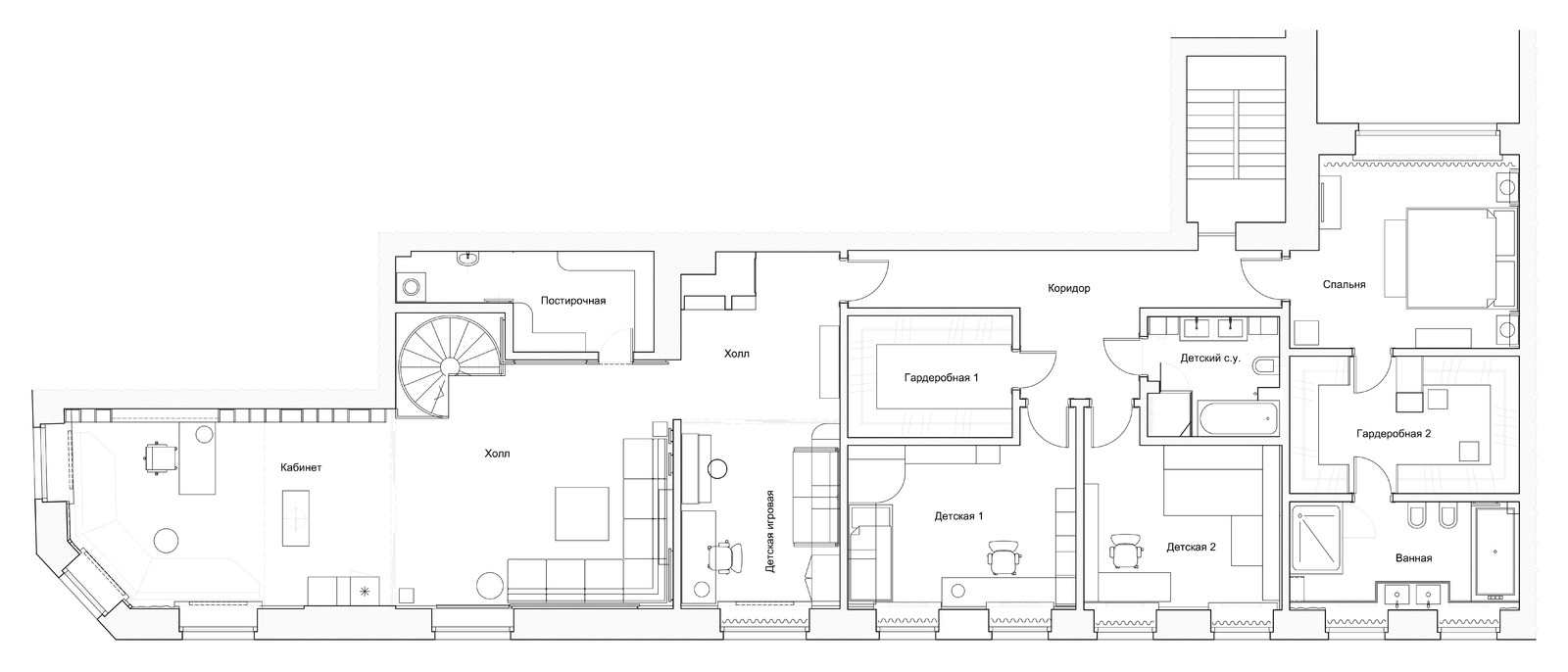
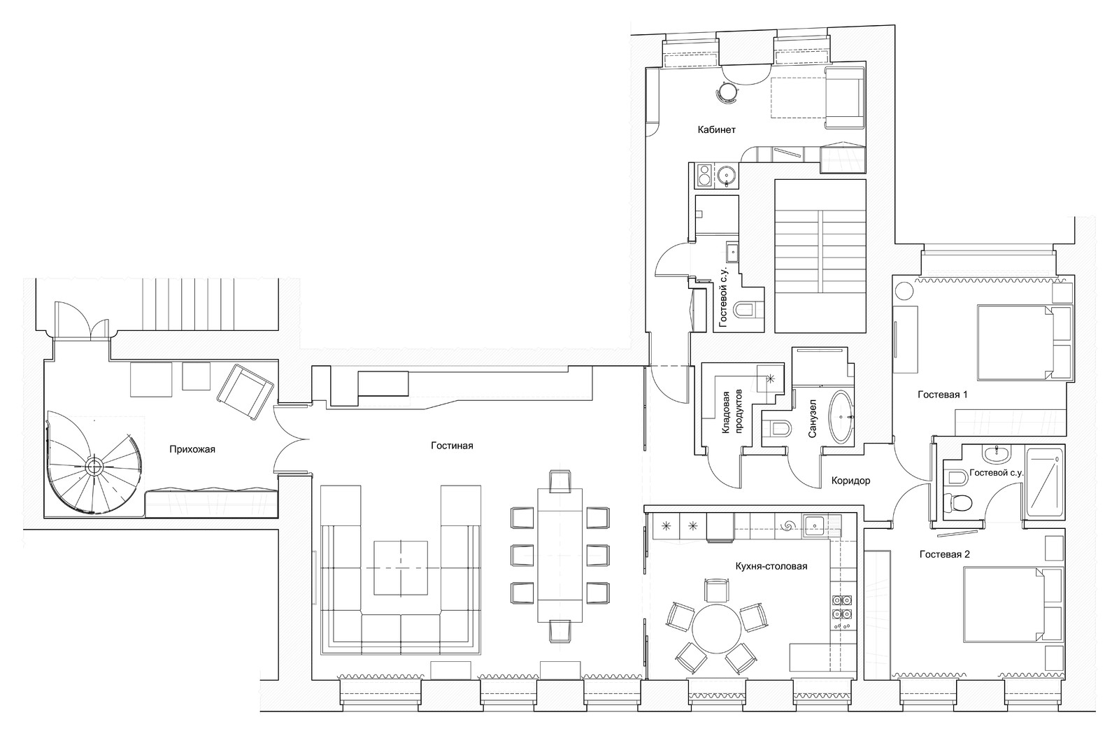
В двухуровневой квартире площадью 350 кв. метров заказчики предполагали сделать косметический ремонт. Но в процессе проектирования была осуществлена перепланировка: . полностью заменены инженерные системы - водопровод и канализация, а также освещение. Кухня переехала на другое место с новой мебелью. Мы . поменяли оба камина и полностью перестроили лестницу. . . Фото Анны Давидян
Год реализации: 2017
Стоимость проектирования: 1 050 000 ₽
г. Москва, Центральный административный округ
10 фотографий










