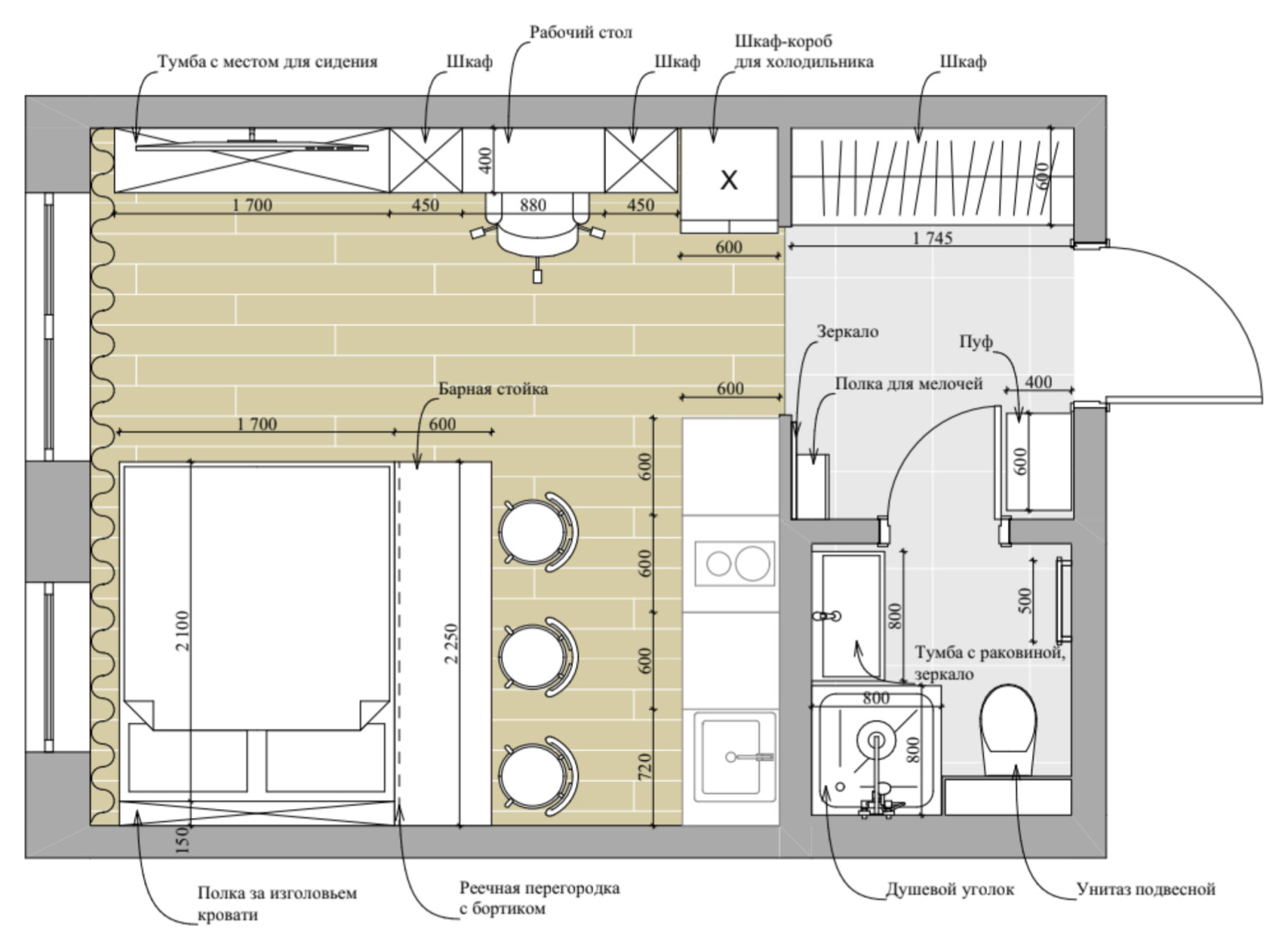
Квартира-студия 25 м² под сдачу в аренду на ул. Крымская
Год реализации: 2022
13 фотографий
13 фотографий

Дом для семьи в стиле минимализм 125 м². Посёлок Костюнино
Коммерция. Двухэтажный Цветочный магазин 32 м²
Стильная однушка 47 м² для девушки в ЖК Селигер Сити
Коммерция. Салон красоты KUTIKULA 105 м². Проект разработан за 1 неделю
Коммерция. Маникюрный салон ПРОНОГТИ 32 м²
Коммерция. Номерной фонд для отеля