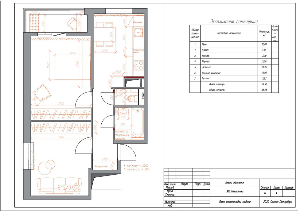
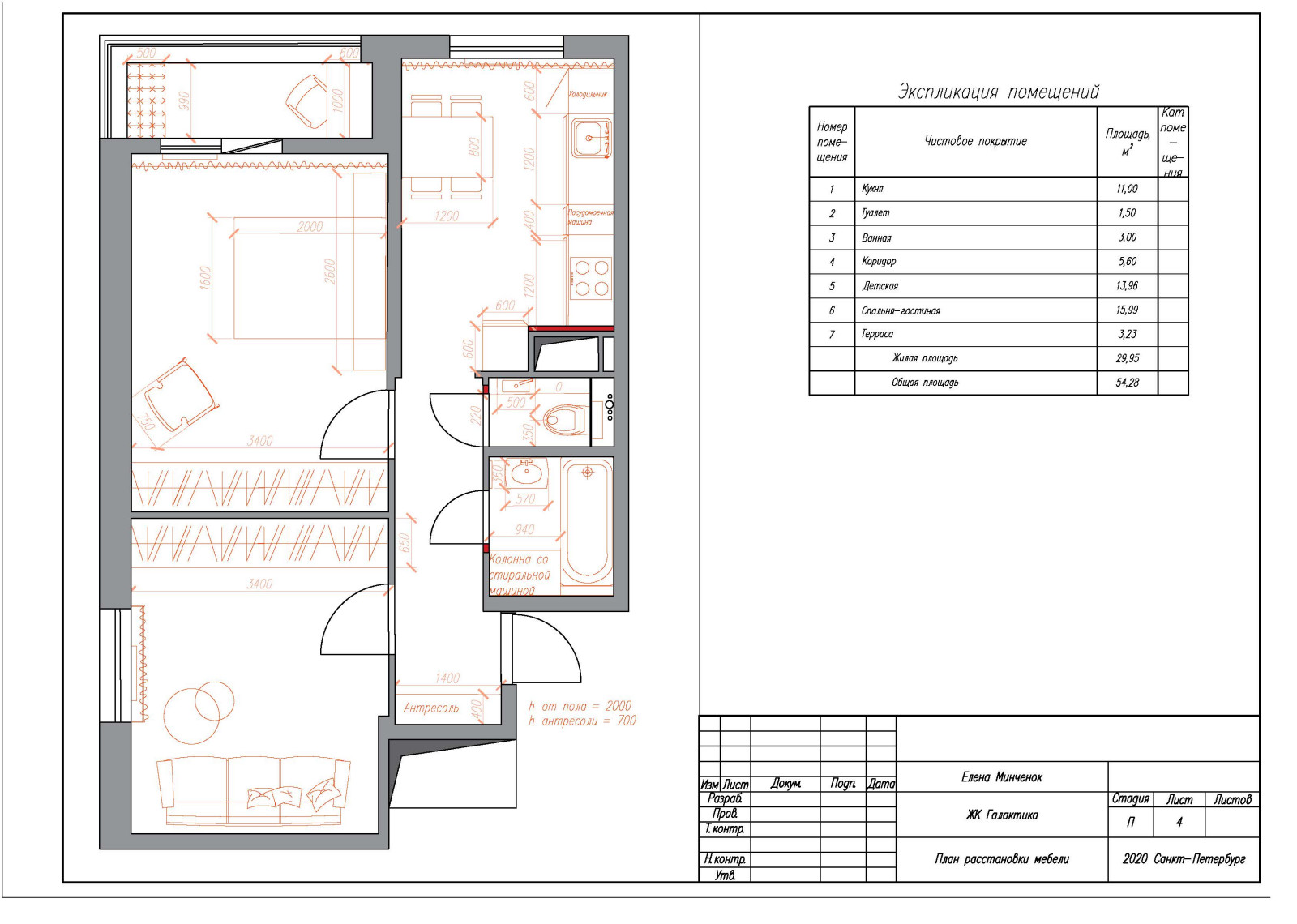
Квартира со средневековой мозаикой в ЖК Галактика Премиум
Проект делался для молодой пары как первое жильё в стиле функционального, но насыщенного минимализма, рассчитанное на планирующееся в будущем расширение семьи. Изюминкой квартиры стало мозаичное панно - схематизированная реконструкция сицилийской мозаики XI века из Палатинской капеллы в Палермо как символ единения западной и восточной культуры в одной семье.
Год реализации: 2020
г. Санкт-Петербург, Митрофаньевское шоссе
7 фотографий








