logo
Войти
Профиль пользователя

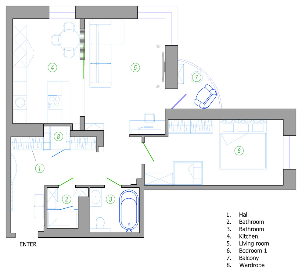
Квартира

Год реализации: 2014
photo

6 фотографий

Квартира
Квартира
Квартира
Квартира
Квартира
Квартира
Квартира
Квартира
Квартира
Квартира
Квартира
Квартира
Фоновое изображение профиля Paul Skachkov
Фото профиля Paul Skachkov

Paul SkachkovPaul Skachkov

0

0 отзывов

Дизайнеры интерьера

Контакты

г. Екатеринбург, Тбилисский бульвар

Все проекты

Квартира "ОГНИ"

Лаунж зона в коттедже

частные аппартаменты

Смотреть все
Флатика
О насМы в прессеFAQКонтактыМатериалыКарта сайта

«Флатика» в соцсетях:

ПинтерестМаксВкДзенTelegramTelegram Pro
Pro
Instagram

Продукт компании Meta, признанной экстремистской организацией, деятельность которой запрещена в РФ

Пользовательское соглашениеПолитика в отношении обработки персональных данных

© 2026 Flatica

ФотоЭкспертыСтатьи