Квартира на ул. Зеленый проспект, Москва
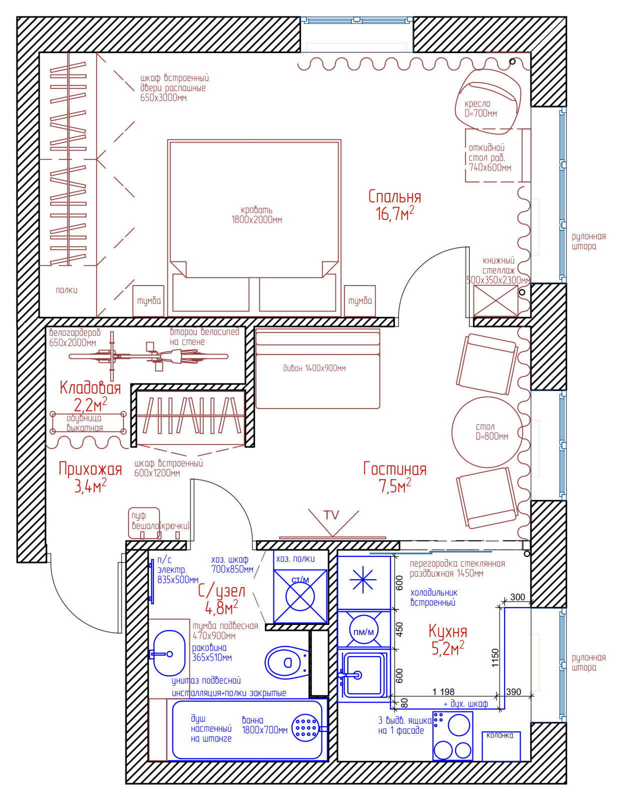
Квартира на первом этаже в одном из типовых домов старой застройки на востоке Москвы досталась в наследство молодой паре Елены и Дмитрия. . Задача, поставленная перед нами, была не очень простой – в тесной двухкомнатной квартире, изобилующей коридорами, с крохотными помещениями и наружними коммуникациями, необходимо было максимально расширить пространство, при этом сохранив границы кухни с газовой колонкой (добавившей хлопот при согласовании) и большой комнаты, выбранной для устройства спальни. Прихожую также хотелось увеличить, при этом добавив в нее встроенный шкаф и «велогараж» - кладовую для хранения велосипедов. Все это удалось воплотить благодаря избавлению от всех коридоров (засчет одного из них расширили санузел, а засчет второго организовали место для велосипедов и шкаф) и созданию анфиладной планировки – вход в спальню и кухню сделали из мини гостиной-столовой, зону кухни от зоны столовой отделили прозрачной стеклянной пергородкой. Напротив входной двери сделали проем в «велогараж», выложив и пол и стену плиткой для максимально комфортной уборки, а напротив двери в санузел разместили встроенный шкаф с зеркальными дверцами. Благо перегородки в доме были не несущие. Квартира получилась очень светлой, анфилада визуально расширила простанство, привнесла шарм открытой перспективы. . . Ребята ведут спокойный образ жизни, любят природу, велопрогулки и мечтали о светлом уютном доме. Единогласно был выбран скандинавский стиль. Архитектура, соразмерная человеку, как раз живет в небольших пространствах. . Простота интерьера и внимание к детялям, баланс практичности и красоты - все это и концепия хюгге, и требования нашего небольшого бюджета на ремонт и мебелеровку. . Учитывая небольшие размеры помещений и необходимость наполнить их тем минимумом, мебели, который нужен для комфорта, хотелось создать пространство, в котором свободно дышится. Цвет стен был выбран максимально нейтральным - так называемые оттенки «скандинавского серого». . В интерьер хотелось привнести неотъемлемые для стиля хюгге и образа жизни ребят мотивы природы, выдержать баланс между духом истории ремесленных изделий из керамики и дерева, свойственных стилю, и современными минималистичными тендениями дизайна. . Напольное покрытие под слегка состаренное дерево из износостойкого кварцвинила, уложенного елочкой по всей площади квартиры, придает ей дух антикварности. Системы освещения наоборот выбраны максимально актуальные и минималистичные. . . На создание интерьера спальни меня вдохновила одна увиденная акварель, передающая атмосферу свежести туманного утра в еловом лесу с ковром цветущего поля иван чая на переднем плане. Мы нашли очень похожие фотообои в пастельных тонах, основной фон которых – молочный - сделали цветом стен спальни. Прикроватные подвесные светильники имитируют луну в ее разных фазах, еще заметную в небе над косяком летящих птиц. А нежные тона постельного белья призваны напоминать укутанное туманом цветущее поле. Вместительный шкаф вдоль стены с жалюзийными деревянными дверцами покрашен также в тон стен. Дополнили интерьер книжный шкаф от ИКЕА с собранием книг о художниках, коллекционируемых Еленой, и темно зеленые шторы в тон елей. . Темно зеленый стал нашим фаворитом для цветовых нюансов в зоне кухни и столовой. Диван в гостиной выбран нейтрального светлосерого тона, чтобы не перегружать простанство. А вот контрастные стулья и буковой стол на черных ножках - творение нашего столяра Александра, создают в меру яркое цветовое пятно у окна. Для придания интерьеру графичности мы использовали матовый черный для рам стеклянной перегородки и раздвижных дверей шкафа, дверных ручек и трековой системы на потолке. Также немного графики мы привнесли узором декоративных вставок в плитке в прихожей и шторы в «велогараж». . В санузле благодаря его расширению получилось организовать вместительный хозяйственный шкаф со стиральной машиной, сушкой для белья, полками, местом для уборочного инвентаря. В образовавшейся нише между шкафом и ванной разместили подвесной унитаз, а напротив - тумбу с раковиной. Весь санфаянс выбрали в белом цвете. А сам интерьер выполнили в тех же оттенках туманного утра – легкий молочный цвет стен и плитки инсталляции и экрана ванной, нежный акварельный тон настенной плитки фабрики Equipe коллекции Artisan, чье название «Aqua» говорит само за себя. В контрасте с прохладой тона Aqua солцнем и теплотой наполнен буковый гарнитур из полки и тумбы для раковины – дело рук нашего мастера Александра. Черный металл смесителя, душевой стойки и полотенесушителя подчеркивают нежность окружающего их интерьера. . . Дом Елены и Дмитрия – это место, куда хочется стремиться после насыщенного рабочего дня, чтобы сбросить напряжение современного ритма жизни, восстановить силы в атмосфере душевного покоя, уюта и единения. . Хюгге - в умении радоваться мелочам в быту, наслаждаться умеренностью и простотой, ценить истинность настоящего момента и искренность семейных отношений. . . . . . . . . и значимость гармоничного быта в повседневной жизни. . «вне времени» . Место душевного покоя и единения. . А суть в равновесии между красотой и практичностью . и Гармоничная атмосфера пространства . место уюта и единения молодой семейной пары. . Для обретения уравновешенности простоты умеренности . умеренноть и спокойствие имеем сдесь и сейчас. Прочность бытия надинение с самим собой и друг другом . того ч . Гармония в равновесии . Ощущение багопоучия в Счастье настоящего момента . , создающие ощущение уюта, домашнего тепла. . Подлинность бытия - в простоте и вниманию к детялям. . . Гармония/ (красоты) . В меру . Естественные формы и материалы , чистое, минималисьтичное . ощущение воздуха. . .
46 фотографий













































