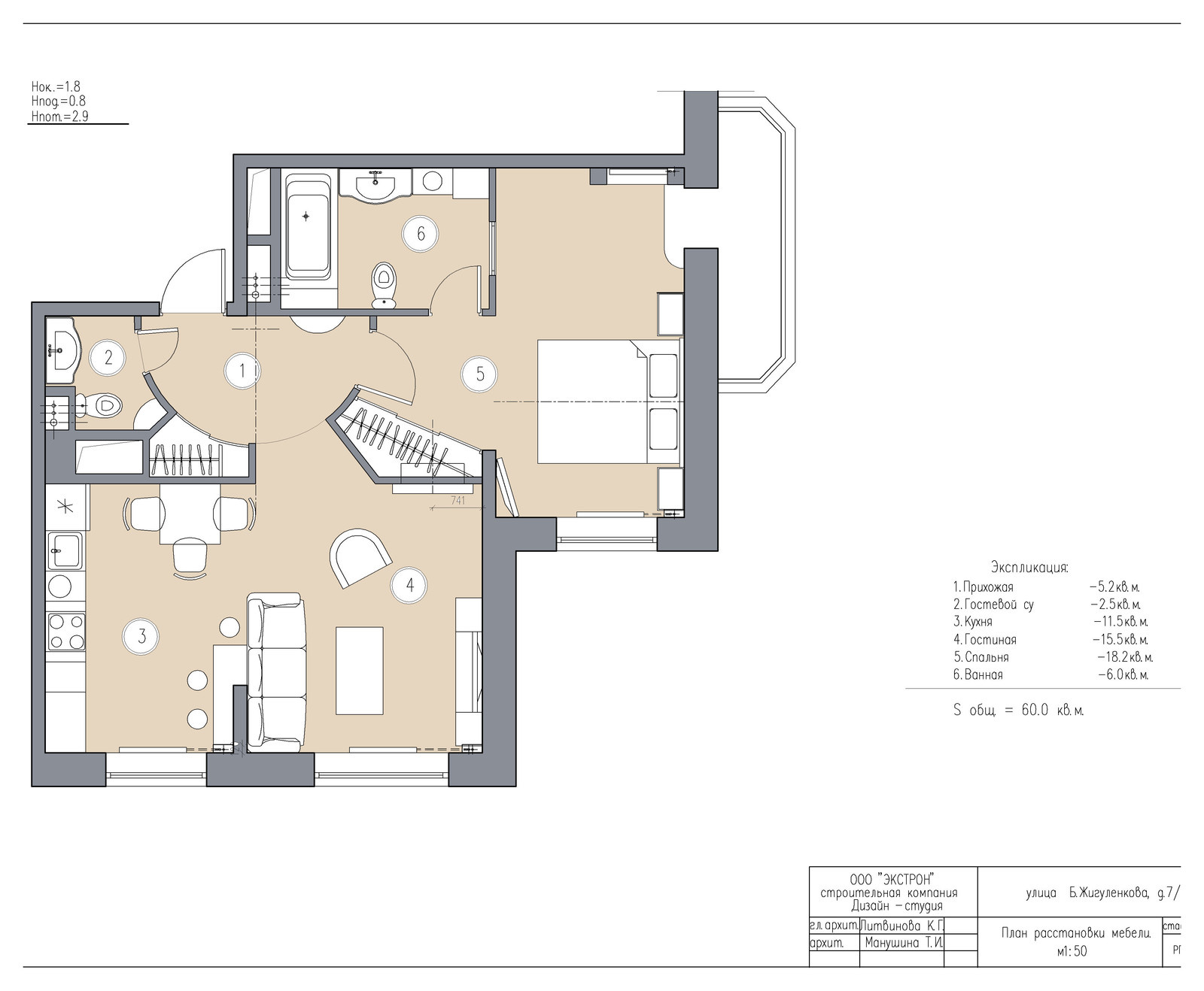
Квартира на ул.Б.Жигуленкова
Мои заказчики по этому объекту - молодая пара, лет 25-28, на момент создания интерьера квартиры у них уже сложилось понимание, что именно им нравится, как в стиле, так и в цветовой гамме интерьера. Муж и женя, несмотря на свои "молодые" годы, уже понимали ценность классики в интерьере, только их основным пожеланием была просьба выполнить классические мотивы в современной интерпретации. Элементы классики проявились в основном в мебели и свете, стены же решены достаточно спокойно, лаконично. Мебель в проект была выбрана итальянская, фабрики Besana, Flay. Цветовая гамма гостиной-кухни основана на сочетании синих, сероголубых,бирюзовых и бежевых тонов, стилистический тон задают обои Sanderson на стенах.
Год реализации: 2014
г. Москва, Центральный административный округ
20 фотографий




















