Квартира на Мосфильмовской, 67 м2
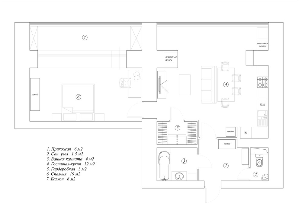
Квартира делалась для молодой семейной пары. Общая площадь 67 м. кв. Потолки 3 метра. . Главным предпочтением в перепланировке было объединить гостиную с кухней и избавиться от шкафов. Исходя из этого я решила не только демонтировать стену между кухней и гостиной, но и присоединить большой балкон (6м кв) к этой общей зоне, тем самым мы увеличили площадь и получили огромное окно которое позволило сделать это пространство максимально светлым и воздушным. Помимо этого удалось запроектировать гардеробную. Из за предпочтения цветовой гаммы интерьер получился монохромным, но в то же время очень уютным за счет разнообразия источников света. Осевая расстановка мебели от кухни к телевизору помогла добиться того, чтобы хозяева могли смотреть телевизор, находясь и на кухне, и обедая за столом и сидя на диване. Так же заказчикам очень хотелось иметь остров, но так как для острова места было не достаточно я предложила поставить им стеклянный (воздушный) стол полу-барной высоты (как высота острова). . В спальне главным элементом стала стена из амбарной доски которая придает уют и тепло, в дальнейшем хозяева хотят повесить на нее много постеров, картин и семейных фотографий. . . Фото проекта: Леонид Леонтьев.
27 фотографий




























