Квартира на Богатырской
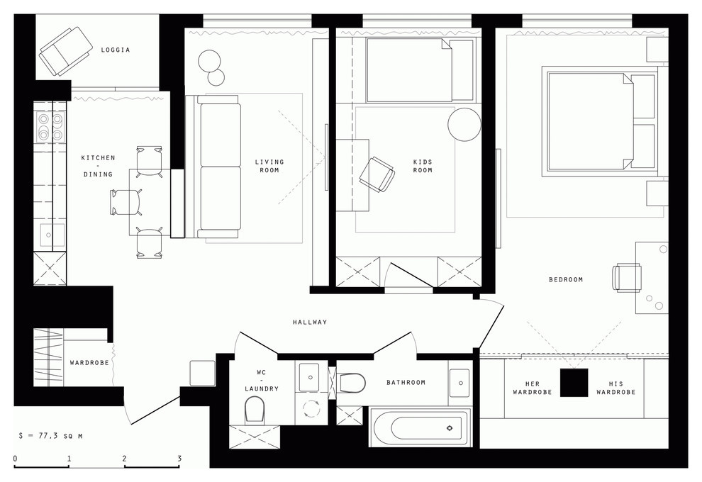
Объект расположен в г.Киев, в новостройке Оболонского района, по ул.Богатырской. . Год реализации: 2014г. . Площадь: 77 м кв . . Автор проекта: Кирилл Кузьменко, Дарья Карелина . . Фото: Кирилл Кузьменко. . . Владельцы квартиры: Костя Антоненко и Наталия Блажкун. Костя - дизайнер интерфейсов, любит путешествия, футбол, вкусную еду и напитки. Наташа работает экаунт менеджером в рекламном агентстве, среди ее увлечений - путешествия, кинематограф и ЗОЖ. . . Чтоб создать свой первый совместный интерьер молодая пара обратилась за проектом в нашу мастерскую. Перед нами поставили задачу: сохранить независимое пространство спальни и будущей детской, а все оставшееся пространство объединить в open-space.. . . После проработки вариантов перепланировки, конфигурация квартиры от застройщика претерпела изменений. Кухню-столовую объединили с гостиной – получили единое открытое пространство, в котором проходит наибольшее количество активного времяпрепровождения. . . Интерьер в европейских традициях: минимализм с элементами скандинавского стиля. . Монохромное окружение серо-белых стен дополнили фактурой дерева, а так же цветовыми акцентами в виде текстиля и элементов мебели.
23 фотографии






















