Квартира моей подруги
Я очень люблю делать дизайн проекты для своих друзей. И очень рада, что Наталья обратилась именно ко мне! Дело в том, что она является директором студии текстильного дизайна "Абрис декор" и сотрудничает со многими дизайнерами и архитекторами, именно поэтому я очень благодарна, что свою квартиру она доверила именно мне.
Год реализации: 2011
Стоимость проектирования: 135 000 ₽
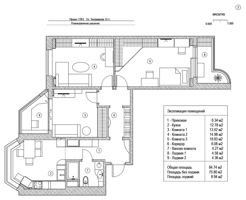
г. Москва, улица ТихомироваСеверо-Восточный административный округ
10 фотографий











