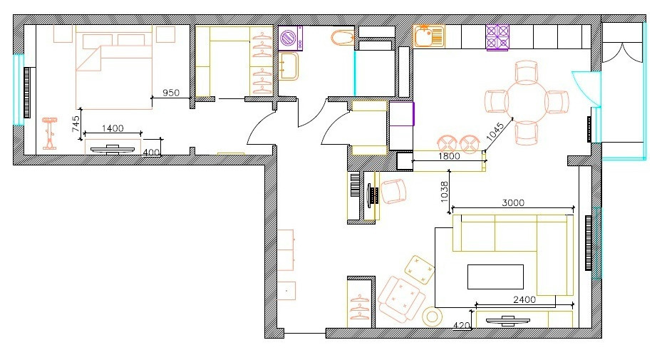
Квартира для пары в ЖК GreenЛандия .
Светлая, "воздушная" квартира 85м2 для молодой пары. Современные решения: выбран средиземноморский стиль путешествий. Спальня достаточна яркая: материалы сочной,тропической, эмоциональной окраски.
Год реализации: 2017
г. Санкт-Петербург
20 фотографий




















