Квартира для молодой семьи
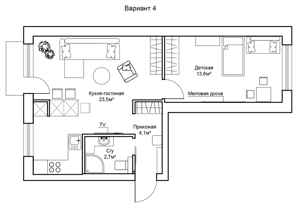
Проектируемая квартира находится в панельном доме. Основной идеей было уйти от проходных комнат с очень маленькой площадью и минимизировать скованность и дискомфорт от проживания в таких условиях. Специалистами 4room было принято решение объединить гостиную и кухню, тем самым создать очень уютное пространство для времяпровождения. Кухня включает в себя барную стойку, которая является продолжением декоративного короба под холодильник. При создании проекта так же учитывалось наличие маленького ребенка у хозяев квартиры. Детская комната включает в себя игровую и спальную зону с интересным решением потолка. Пастельные тона стен и элементов декора вписываются в интерьер. Индивидуальность квартире добавляют декоративные вставки из натурального дуба.
12 фотографий













