Квартира для аренды. Ashd_metr03. Вариант 2
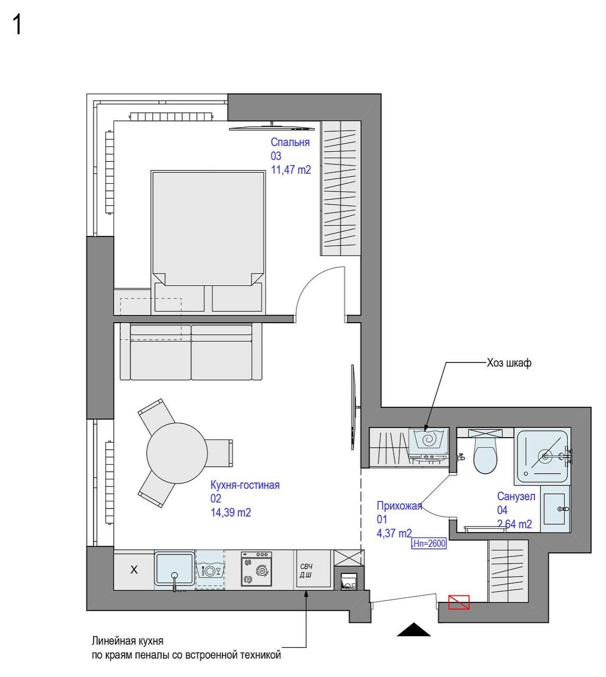
Квартира для аренды. Планировку вписывали в существующие стены и условия. . Вышло функционально и стильно. . Это вариант 2. Согласованыый. . Проект - конец 2021, реализация 2021-2022
Год реализации: 2022
Стоимость проектирования: 135 000 ₽
г. Москва
14 фотографий















