Квартира для аренды. Ashd_metr03. Вариант 1
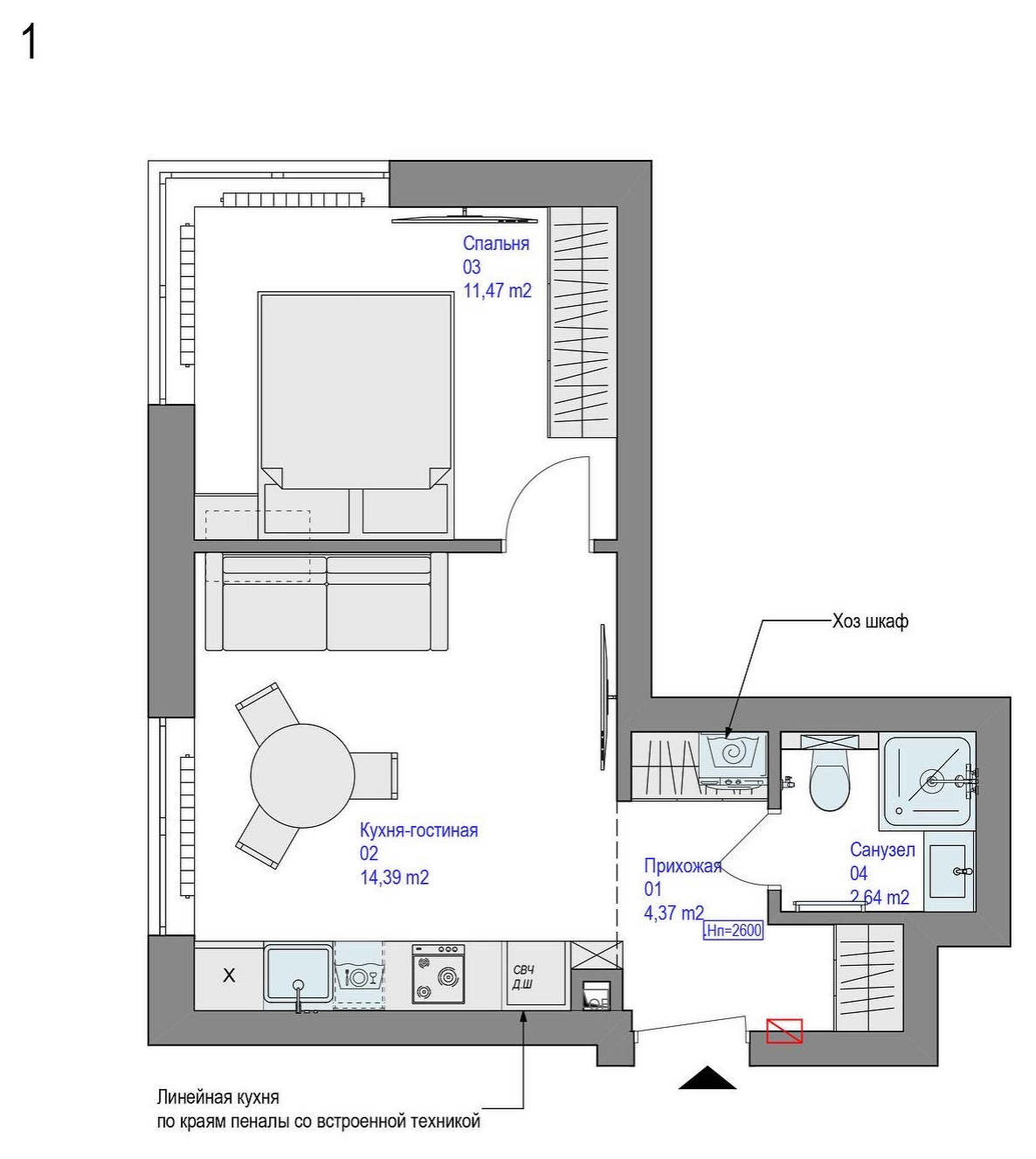
Квартира сдавалсь с отделкой whitebox. . Вписались в заданную планировку и разместили все самое необходимое. . Вариант 1. Несогласованный
Год реализации: 2022
Стоимость проектирования: 135 000 ₽
г. Москва
14 фотографий















