Квартира архитектора с садом и винтажной мебелью
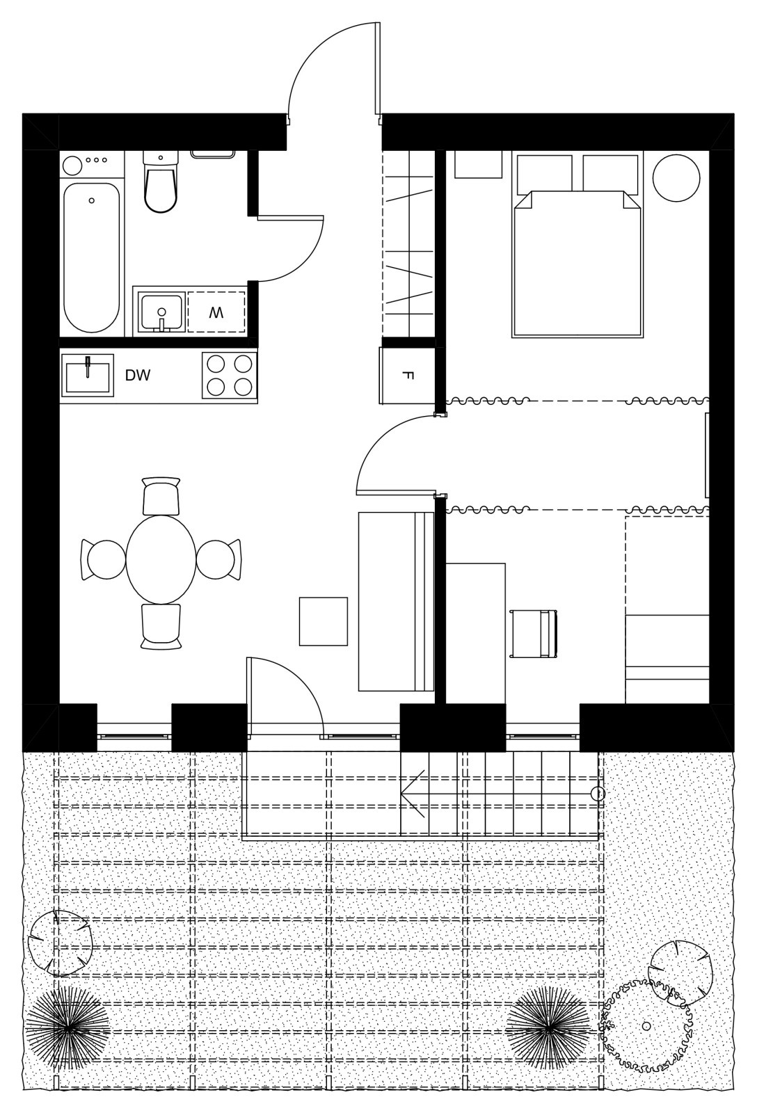
Площадь 40 м2 . . Небольшая расположена в клубном доме в санаторном районе города. Поскольку апартаменты 1-го уровня имеют выход на прилегающий собственный участок, габариты недвижимости воспринимаются вместе с маленьким садиком, ограниченным перголой с зеленой изгородью из дикого винограда. Маленькая квартира представляет собой трансформер, совмещающий проживание, работу и отдых в одном месте. В планировочном решении задействована максимально полезная площадь квартиры с организацией четкого функционального зонирования. Все зоны имеют комфортные пропорции с учетом хорошего естественного света через высокие окна, ориентированные на южную сторону. Структура квартиры поделена на 2 площади: приватную и публичную. Публичная: прихожая с гардеробом, выделенный блок ванной и кухни, столовая-гостиная; приватная: спальня и рабочий кабинет, где может быть расположена второе спальное место. Пространство гостиной имеет второй вход с улицы со стороны сада и может также использоваться как домашний офис с возможностью приема клиентов, тогда как жилая комната сепарирована и закрыта для обзора. Пространственные текстильные перегородки спальни, формирующие зонирование, также блокируют вид на приватные зоны и создают ощущение двух разных комнат внутри одной. Большое настенное зеркало в размер двери визуально увеличивает пространство, отражает естественный свет и служит связью между двумя функциональными объемами квартиры. В летний сезон сад, скрытый зеленым забором, служит местом отдыха и приема посетителей. В решении интерьера применен рациональный подход с акцентом на планировочной концепции, где перво-исходные материалы как бетон и стеновые блоки служат фоном и подчеркивают гармонию среды обитания. Доминирующий цвет стен - белый, как чистый лист бумаги, дающий чувство обновления. Блок ванной и кухни выделен контрастно в черный куб, подчеркивая компактность и рациональность архитектурного решения квартиры и внося элемент графики. Принципиальным фактором в формировании интерьера послужили личные винтажные предметы мебели, отреставрированные по индивидуальному заказу, которые вносят определенную атмосферу и уют. Единственная декоративная люстра в приватной комнате сделана из почтовых открыток с эскизами автора.
29 фотографий





























