Квартира 91 кв.м. ЖК "Лефортово Парк"
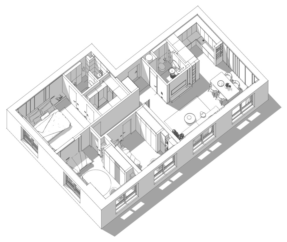
Проект на западе Москвы. . . Заказчики очень приятная молодая пара с двумя детьми. Хотелось получить пространство для каждого, то есть 2 детские, полноценный мастер блок с санузлом и гардеробной. Также необходимо было создать пространство для всех: большая кухня-гостиная, где можно собрать гостей за большим столом, выпить вина и помузицировать. . . Исходные планировочные данные (6 окон, отсутствие стояков и колонн в центре пространства) позволили нам реализовать задуманное планировочное решение. . . Основную палитру проекта составляют натуральные оттенки: дерево, тёплый оттенок серо-бежевого, глубокий оттенок зелёного в качестве акцентного. В целом палитра проекта получилась легкой, но при этом тёплой, насыщенной и обволакивающей. К такому впечатлению мы и стремились.
36 фотографий





































