Квартира 70м на Алексеевской
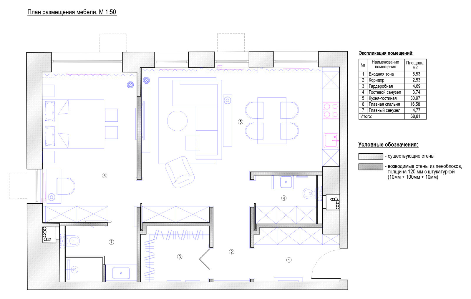
Единое функциональное пространство на 70 кв.м для супружеской пары
Год реализации: 2020
г. Москва, Маломосковская улица, Северо-Восточный административный округ
31 фотография
Единое функциональное пространство на 70 кв.м для супружеской пары
31 фотография
