logo
Войти
Профиль пользователя

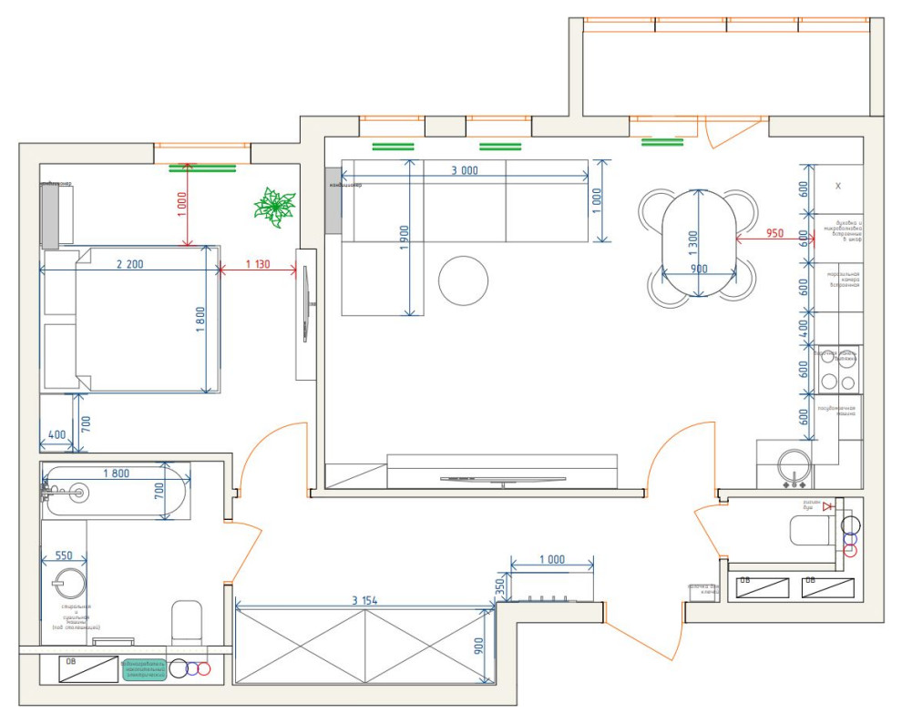
Квартира 59квм.

Дизайн-проект квартиры 59квм. для мужчины.

Год реализации: 2019
г. Москва
photo

3 фотографии

Квартира 59квм.
Квартира 59квм.
Квартира 59квм.
Квартира 59квм.
Квартира 59квм.
Квартира 59квм.
Фоновое изображение профиля Olesya Kuznetsova
Фото профиля Olesya Kuznetsova

Olesya KuznetsovaOlesya Kuznetsova

5

1 отзыв

Дизайнеры интерьера

Контакты

г. Москва

Все проекты

Квартира 64квм.

Квартира 65квм.

Квартира 75квм

Квартира 107квм.

Квартира 80квм

Квартира 70квм.

Смотреть все
Флатика
О насМы в прессеFAQКонтактыМатериалыКарта сайта

«Флатика» в соцсетях:

ПинтерестМаксВкДзенTelegramTelegram Pro
Pro
Instagram

Продукт компании Meta, признанной экстремистской организацией, деятельность которой запрещена в РФ

Пользовательское соглашениеПолитика в отношении обработки персональных данных

© 2026 Flatica

ФотоЭкспертыСтатьи