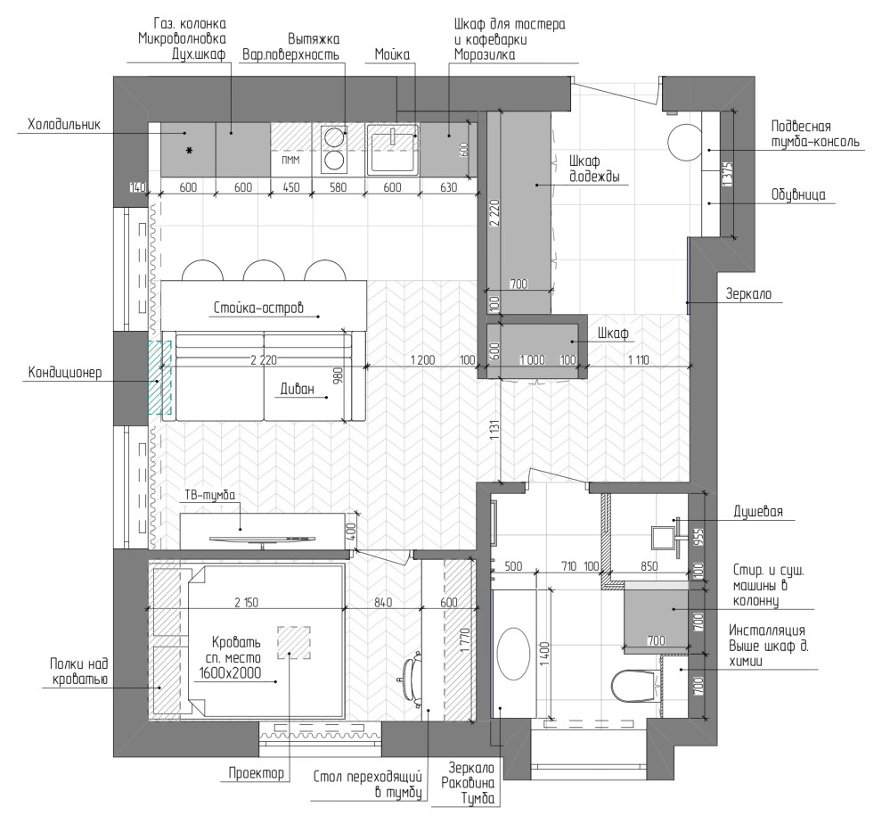
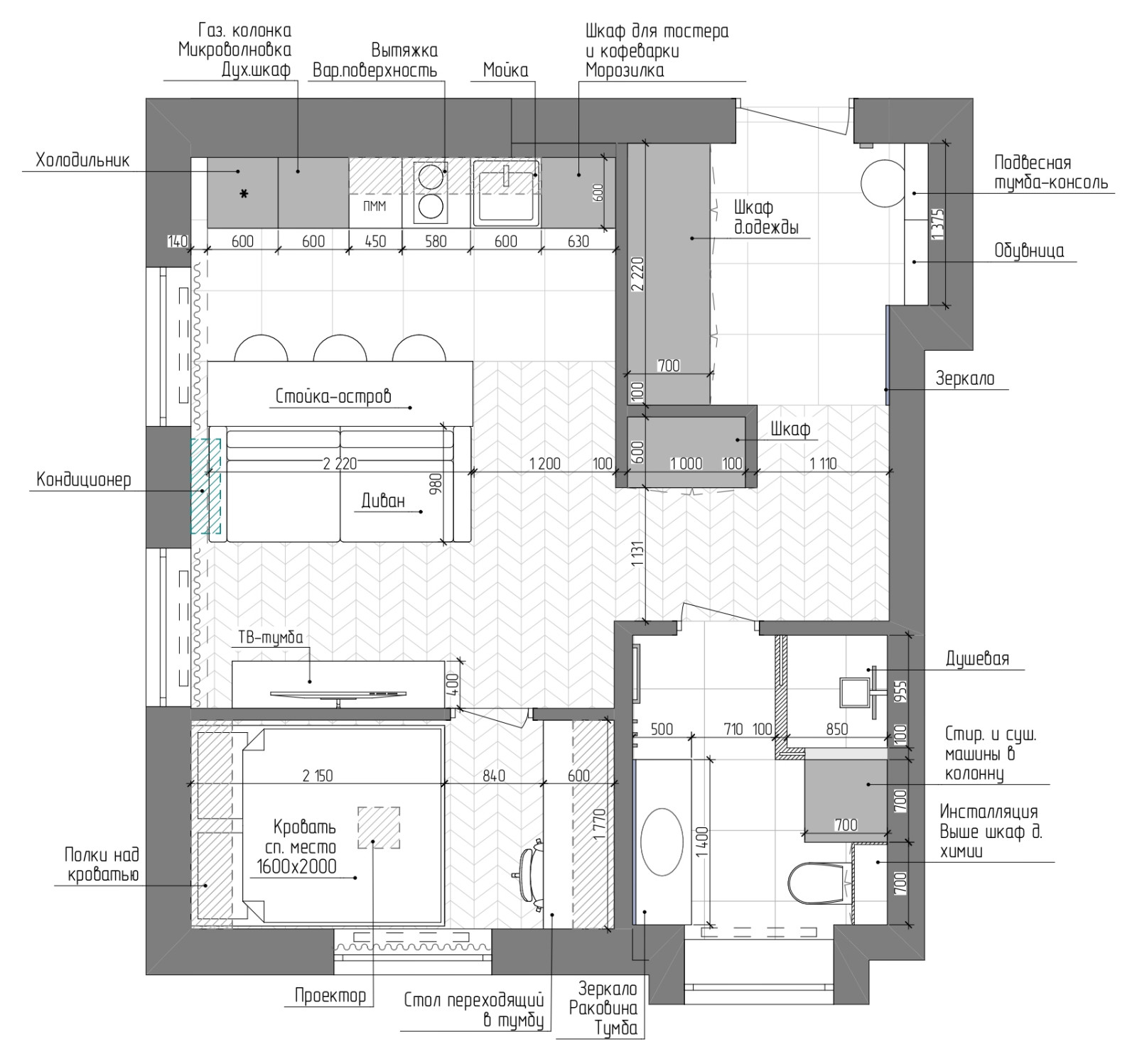
Квартира 37 кв.м, г. Нижний Новгород
Год реализации: 2021
15 фотографий
15 фотографий

Дизайн-проект квартиры 80кв.м., ЖК Шагал, Москва
Дизайн-проект квартиры 51 кв.м., Ульяновск
Дизайн-проект частного дома, Ульяновск
Дизайн-проект квартиры 76кв.м., Москва
Дизайн-проект частного дома 98кв.м., Казань
Дизайн-проект квартиры 73кв.м., Екатеринбург
Дизайн-проект квартиры 38кв.м., ЖК Любовь и голуби, Москва