logo

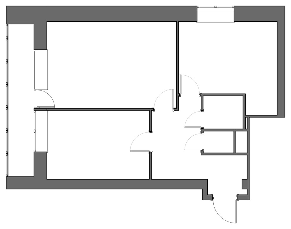
Проект квартиры на ул.Самокатная. Реализация . Общая площадь 50м2 . Высота потолков 2,5м

Год реализации: 2017
Стоимость проектирования: 5 250 000
г. Москва, Самокатная улицаЮго-Восточный административный округ
photo

24 фотографии

KURSKAYA FLAT
KURSKAYA FLAT
KURSKAYA FLAT
KURSKAYA FLAT
KURSKAYA FLAT
KURSKAYA FLAT
KURSKAYA FLAT
KURSKAYA FLAT
KURSKAYA FLAT
KURSKAYA FLAT
KURSKAYA FLAT
KURSKAYA FLAT
KURSKAYA FLAT
KURSKAYA FLAT
KURSKAYA FLAT
KURSKAYA FLAT
KURSKAYA FLAT
KURSKAYA FLAT
KURSKAYA FLAT
KURSKAYA FLAT
KURSKAYA FLAT
KURSKAYA FLAT
KURSKAYA FLAT
KURSKAYA FLAT
KURSKAYA FLAT
KURSKAYA FLAT
KURSKAYA FLAT
KURSKAYA FLAT
KURSKAYA FLAT
KURSKAYA FLAT
KURSKAYA FLAT
KURSKAYA FLAT
KURSKAYA FLAT
KURSKAYA FLAT
KURSKAYA FLAT
KURSKAYA FLAT
KURSKAYA FLAT
KURSKAYA FLAT
KURSKAYA FLAT
KURSKAYA FLAT
KURSKAYA FLAT
KURSKAYA FLAT
KURSKAYA FLAT
KURSKAYA FLAT
KURSKAYA FLAT
KURSKAYA FLAT
KURSKAYA FLAT
KURSKAYA FLAT
Фоновое изображение профиля Екатерина
Фото профиля Екатерина

Екатерина

Дизайнеры интерьера

Контакты

г. Москва