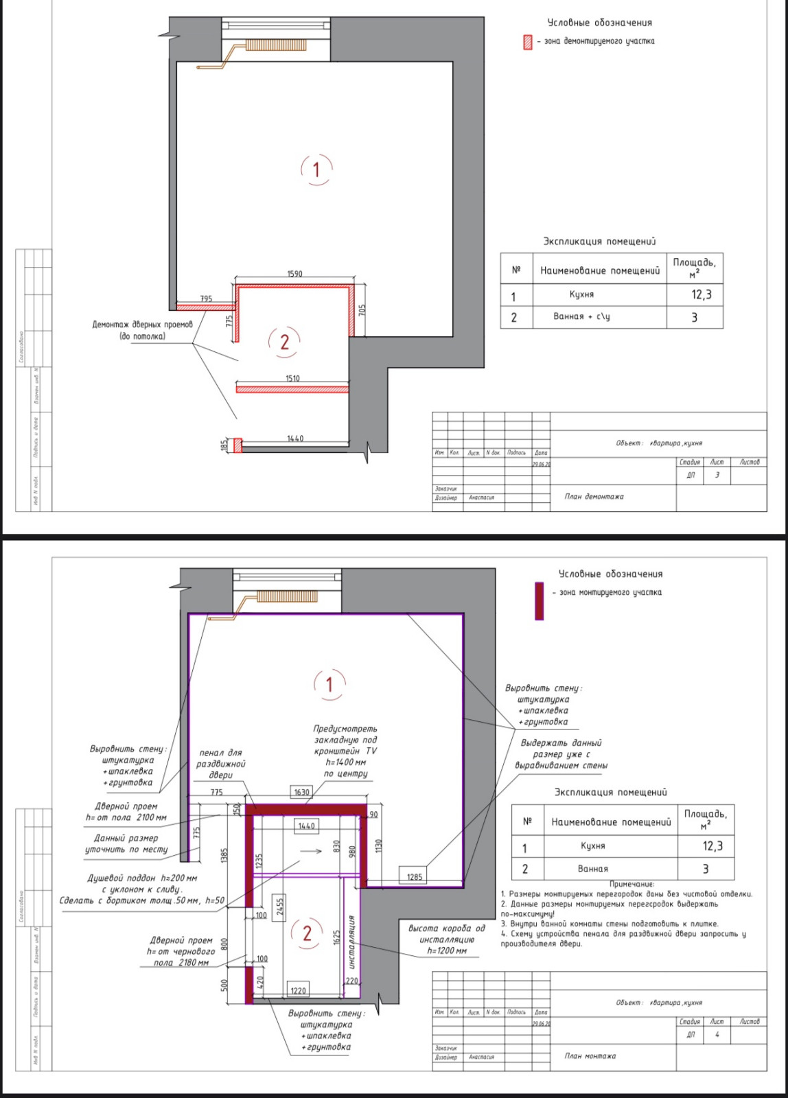
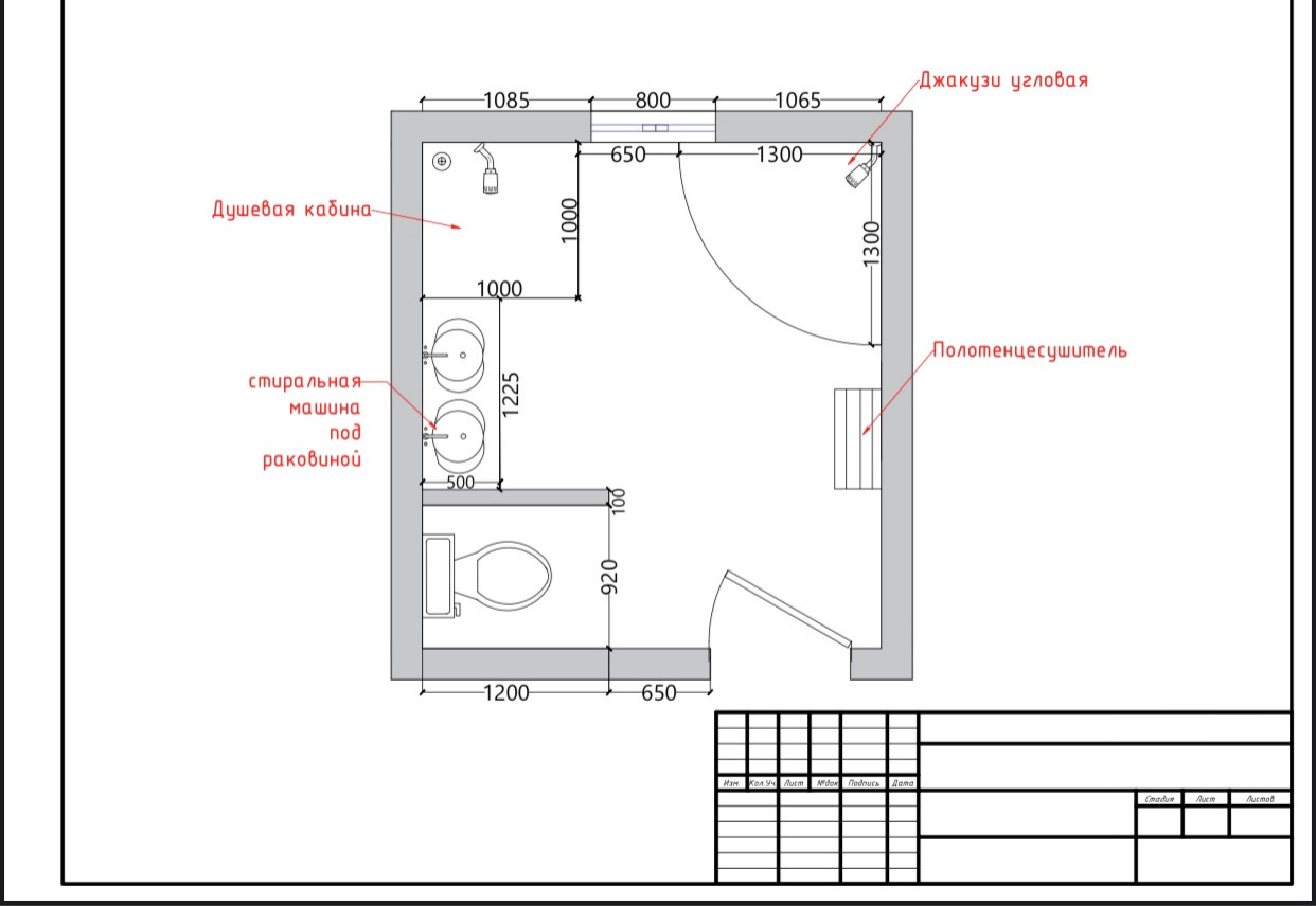
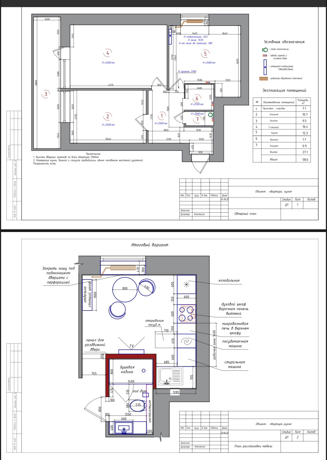
Кухня-ванная в стиле прованс
Проект сочетает в себе убодство, функционал и все это с ноткой французской деревни Прованс. Сочетание оливкового, фиолетового с резными формами позволяет отдохнуть и расслабиться.
Стоимость проектирования: 34 999 ₽
г. Москва
16 фотографий

















