logo
Войти
Профиль пользователя

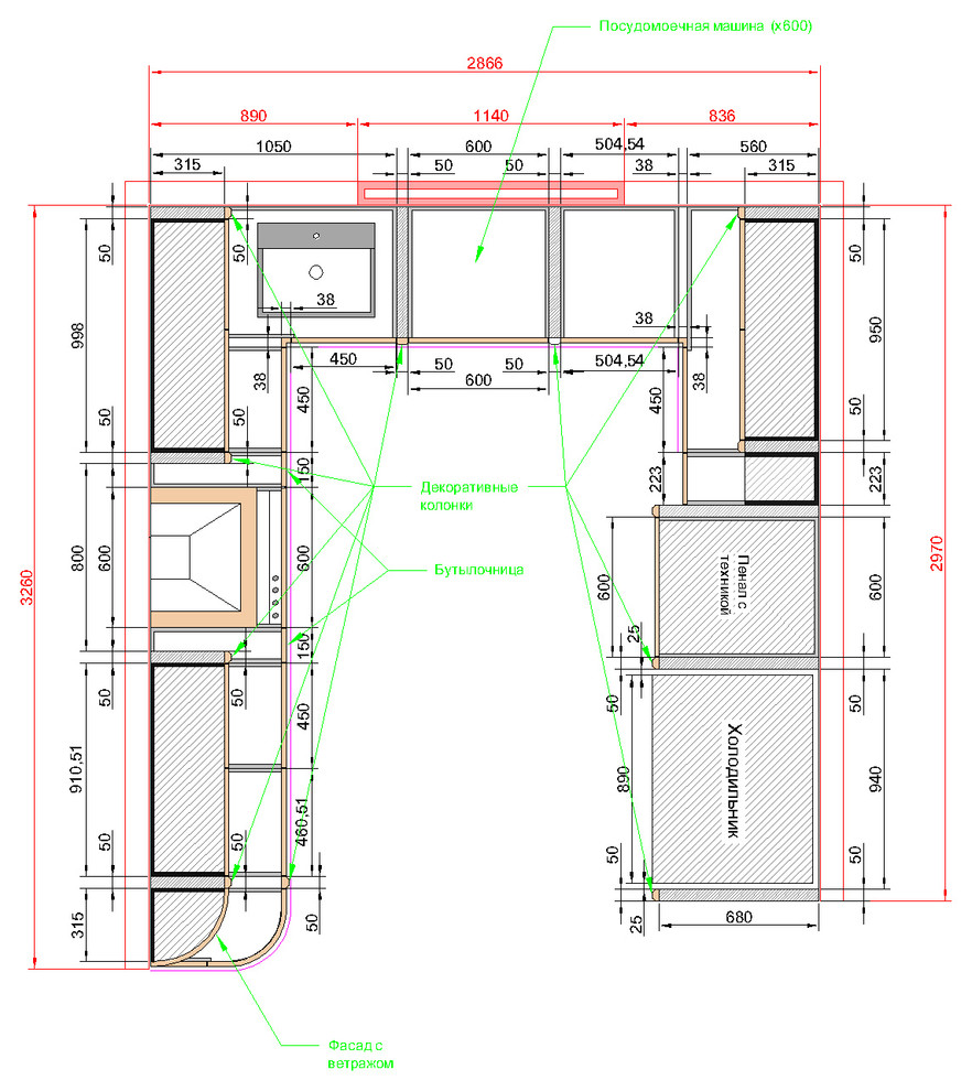
Кухня КЛАУС

Год реализации: 2015
photo

4 фотографии

Кухня КЛАУС
Кухня КЛАУС
Кухня КЛАУС
Кухня КЛАУС
Кухня КЛАУС
Кухня КЛАУС
Кухня КЛАУС
Кухня КЛАУС
Фоновое изображение профиля Рустам
Фото профиля Рустам

РустамРустам

0

0 отзывов

Производство и установка кухонь

Контакты

г. Сочи, ул.Северная 12/1

Все проекты

Кухня для Елены

Частный дом

Минимализм

КУХНЯ "МАЛАХИТОВАЯ ШКАТУЛКА

Кухня, заказчик Надежда ЖК "Благодатный" апартаменты №109

Кухня, заказчик Роман ЖК "Катерина"

Кухня в частный дом на "Сергей Поле"

Смотреть все
Флатика
О насМы в прессеFAQКонтактыМатериалыКарта сайта

«Флатика» в соцсетях:

ПинтерестМаксВкДзенTelegramTelegram Pro
Pro
Instagram

Продукт компании Meta, признанной экстремистской организацией, деятельность которой запрещена в РФ

Пользовательское соглашениеПолитика в отношении обработки персональных данных

© 2026 Flatica

ФотоЭкспертыСтатьи