Коворкинг LOFT8floor
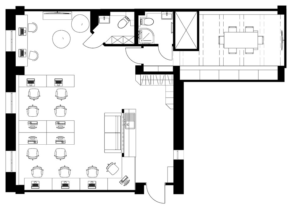
У нашего заказчика появилась отличная бизнес-идея - создать компактный коворкинг с элементами индустриального стиля. Мы предложили использовать простые формы и материалы, характерные для мужского интерьера: кирпич, металл, во многих текстурах присутствует скрэтч-эффект (потертые текстуры). Проект получился универсальным благодаря классическому сочетанию нейтральной базы и нескольких цветовых акцентов. Мы замиксовали простые предметы мебели и сделанные на заказ, а открытая декоративная проводка, металлические плафоны, перегородка из стеклоблоков и кованые решетки - отсылки к индустриальному стилю. . В пространстве коворкинга можно обозначить две основные зоны: общее рабочее пространство с кухней и закрытая переговорная. В перспективе планируется третья зона с выходом на крышу для работы под открытым небом в теплое время года и chill-out площадка. . Перед нами стояла задача организовать гибкое пространство с возможностью смены сценариев: коворкинг подходит как для совместной работы, так и для проведения мастер-классов, лекториев, небольших вечеринок или может быть оборудован под фотостудию. . В режиме «офис» закреплены 11 рабочих мест. К каждому из них привязана ячейка индивидуального хранения. В режиме «лекторий» размещается до 30 посадочных мест. Благодаря специальным механизмам столы можно быстро сложить и убрать, так же как и дополнительные складные стулья, трансформирующие пространство в лекторий. Для демонстрации материалов используется ТВ или проектор. В коворкинге реализуются разные сценарии освещения, а окна снабжены светонепроницаемыми рулонными шторами. . Переговорная отделена от общего рабочего пространства и используется для закрытых встреч или командной работы. В случае необходимости комната может быть переоборудована под кабинет руководителя. Сложная геометрия небольшого помещения требовала минималистичных решений в отделке. Яркий акцент переговорной – стол из массива на кованом подстолье. . При довольно скромных размерах - всего 85 кв.м. – коворкинг насыщен функционально, а наличие кухни и личного санузла с душем в переговорной делают это пространство полностью автономным и пригодным для проживания.
37 фотографий





































