Коттедж в Подмосковье
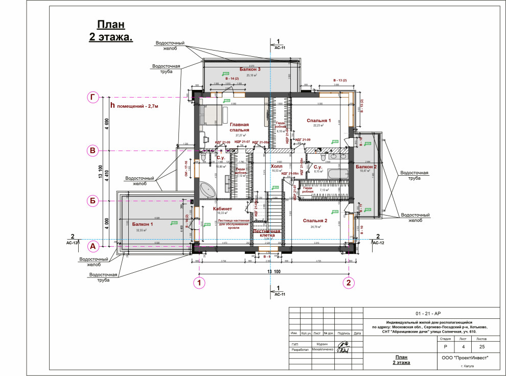
учтены все пожелания заказчика. Тут специально для хауса обрезали шапку альбома и сделали больше сами схемы.
Год реализации: 2022
Стоимость проектирования: 135 000 ₽
28 фотографий
учтены все пожелания заказчика. Тут специально для хауса обрезали шапку альбома и сделали больше сами схемы.
28 фотографий
