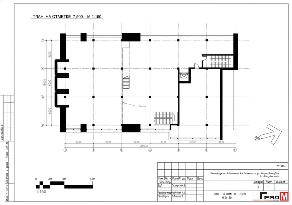
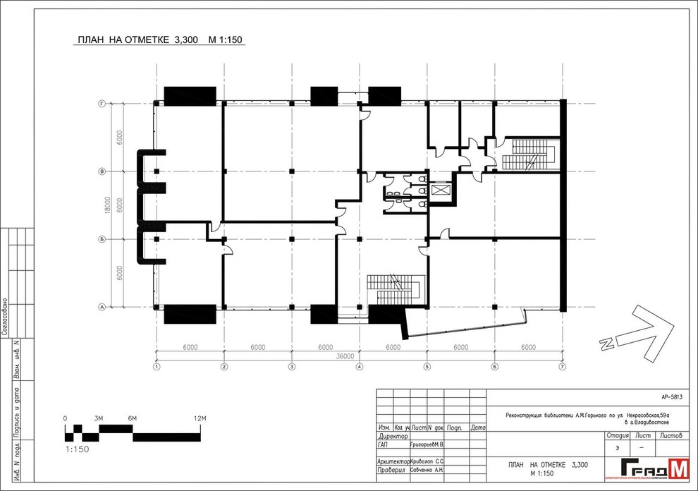
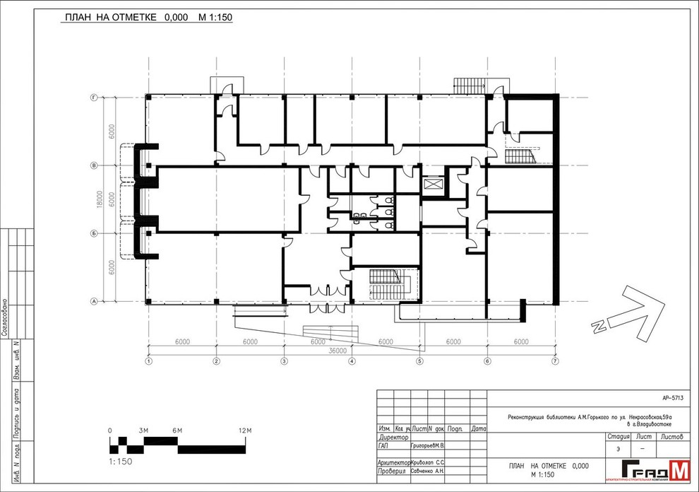
Профиль пользователяКонцепция реконструкции библиотекиГод реализации: 2019г. Владивосток6 фотографийПоделитьсяСохранитьКонцепция реконструкции библиотекиПоделитьсяСохранитьКонцепция реконструкции библиотекиПоделитьсяСохранитьКонцепция реконструкции библиотекиПоделитьсяСохранитьКонцепция реконструкции библиотекиПоделитьсяСохранитьКонцепция реконструкции библиотекиПоделитьсяСохранитьКонцепция реконструкции библиотекиПоделитьсяСохранить