logo

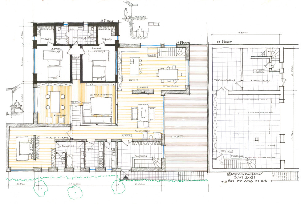
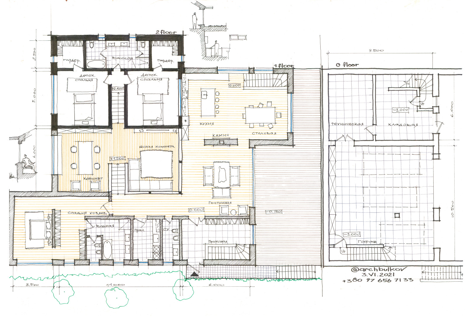
Концепт проект дома на склоне

Год реализации: 2021
photo

5 фотографий

Концепт проект дома на склоне
Концепт проект дома на склоне
Концепт проект дома на склоне
Концепт проект дома на склоне
Концепт проект дома на склоне
Концепт проект дома на склоне
Концепт проект дома на склоне
Концепт проект дома на склоне
Концепт проект дома на склоне
Концепт проект дома на склоне
Фоновое изображение профиля ArchBulkov
Фото профиля ArchBulkov

ArchBulkovarchbulkov

Архитекторы