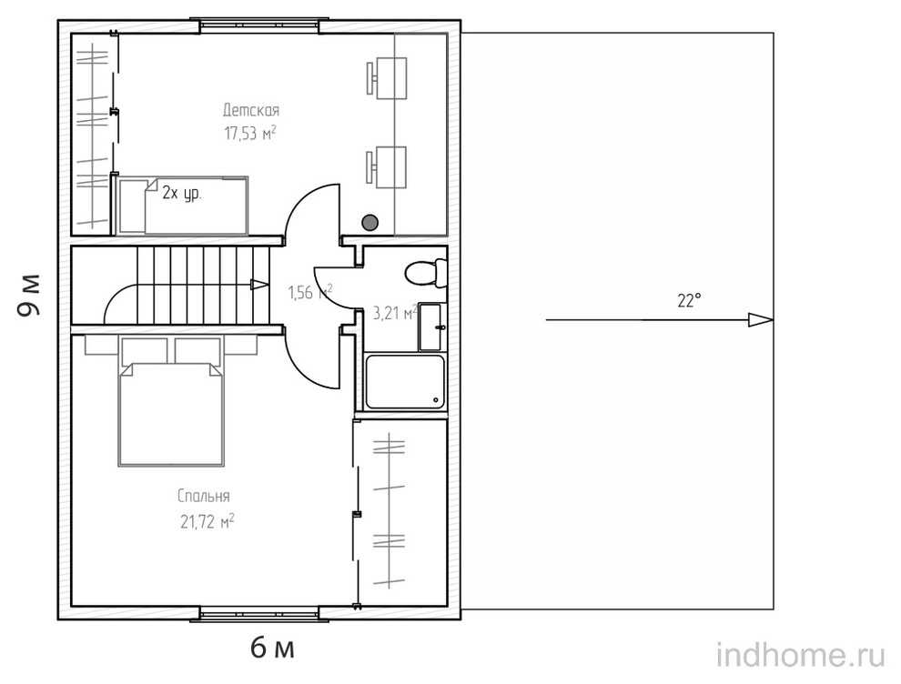
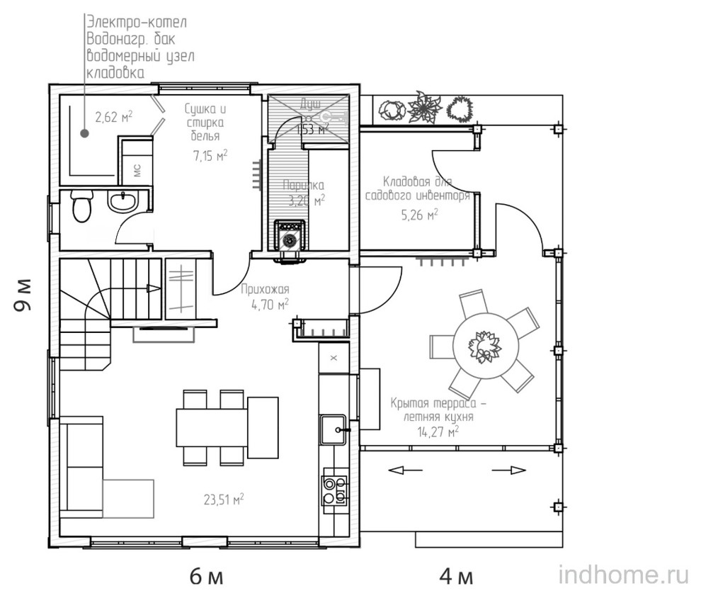
Профиль пользователяКомпактный двухэтажный дачный дом 6х9 м с баней на дровах и крытой верандойГод реализации: 2017г. Пермь6 фотографийПоделитьсяСохранитьРасположение на участкеПоделитьсяСохранитьИнтерьерное решениеПоделитьсяСохранитьПлан 2 этажаПоделитьсяСохранитьПлан 1 этажаПоделитьсяСохранитьФасад двухэтажного дачного дома 6х9 мПоделитьсяСохранитьФасад двухэтажного дачного дома 6х9 мПоделитьсяСохранить