Канны
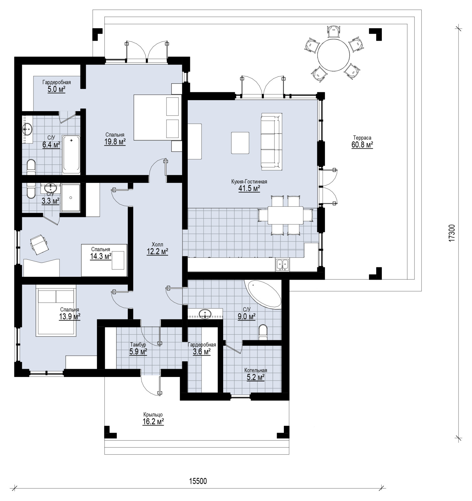
Очаровательный проект в минималистичном стиле. Архитекторы MANSIO создали не просто жильё, а место для отдыха и вдохновения: наряду с открытой террасой спроектировали просторную крытую террасу, чтобы круглый год иметь возможность отдыхать с видом на природу. Дом имеет три выхода во двор: из кухни, гостиной и спальни.
Год реализации: 2022
5 фотографий






