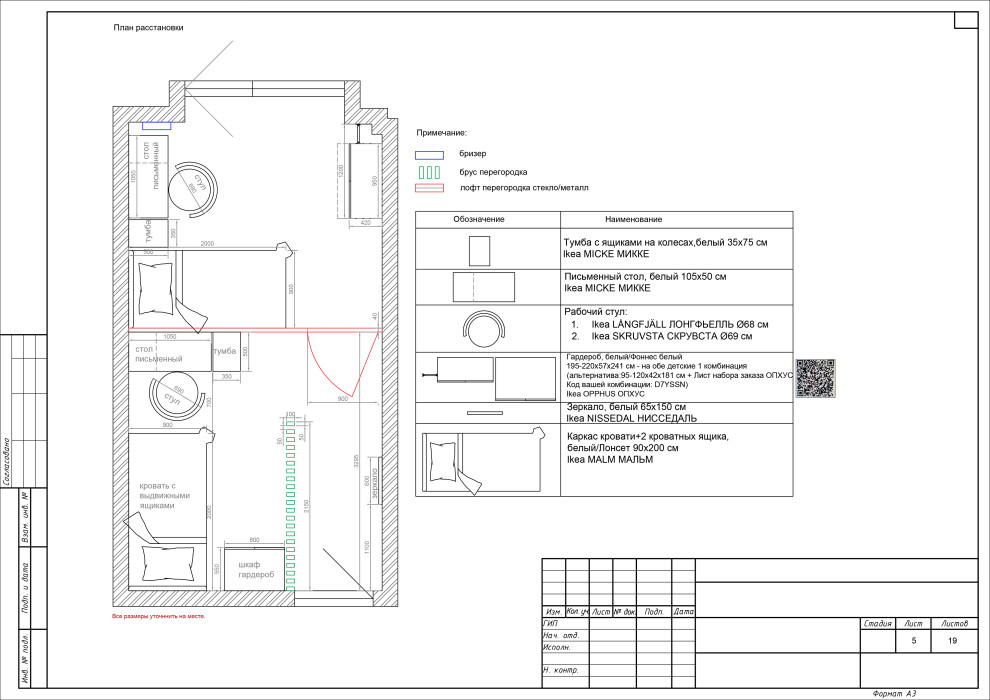
Профиль пользователяКак разделить пространство одной комнаты для двух детей подростков?Год реализации: 20229 фотографийПоделитьсяСохранитьКак разделить пространство одной комнаты для двух детей подростков?ПоделитьсяСохранитьКак разделить пространство одной комнаты для двух детей подростков?ПоделитьсяСохранитьКак разделить пространство одной комнаты для двух детей подростков?ПоделитьсяСохранитьКак разделить пространство одной комнаты для двух детей подростков?ПоделитьсяСохранитьКак разделить пространство одной комнаты для двух детей подростков?ПоделитьсяСохранитьКак разделить пространство одной комнаты для двух детей подростков?ПоделитьсяСохранитьКак разделить пространство одной комнаты для двух детей подростков?ПоделитьсяСохранитьКак разделить пространство одной комнаты для двух детей подростков?ПоделитьсяСохранитьКак разделить пространство одной комнаты для двух детей подростков?ПоделитьсяСохранить