Кафе Sweet
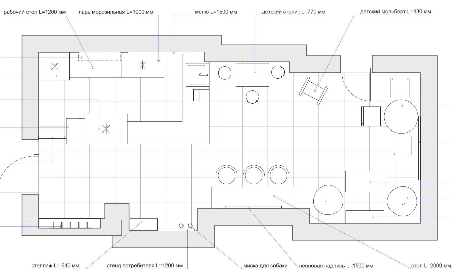
Небольшая кофейня в Санкт-Петербурге. . Основной задачей было сделать органичное пространство с уютной атмосферой и ограниченным бюджетом. . На площади 33 кв.м. размещена рабочая зона, to go зона, три варианта посадочных мест, детская зона. . .
Год реализации: 2020
Стоимость проектирования: 135 000 ₽
г. Санкт-Петербург, 20 корпус 2 Туристская улица
11 фотографий












