Istanbul Loft
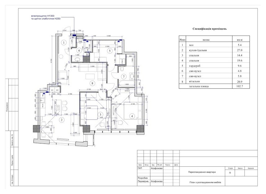
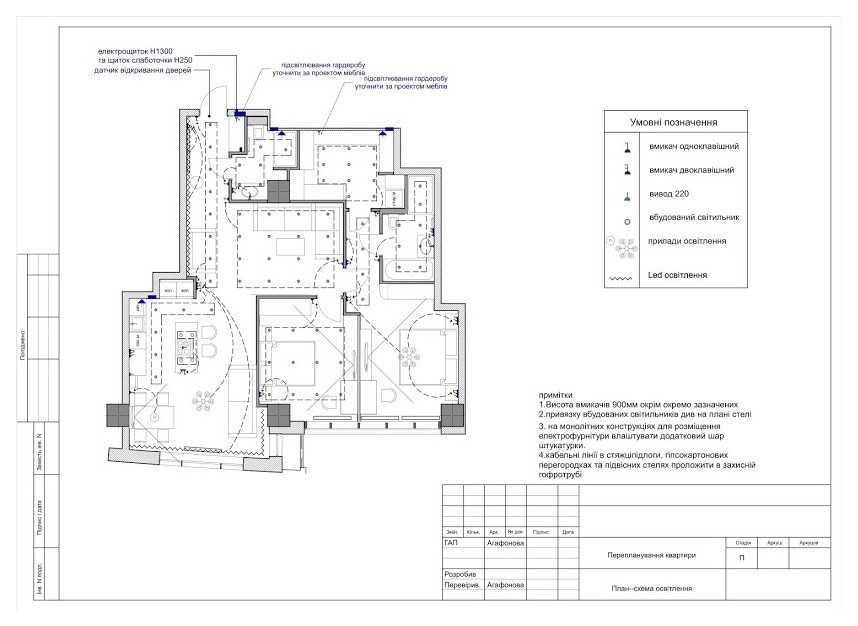
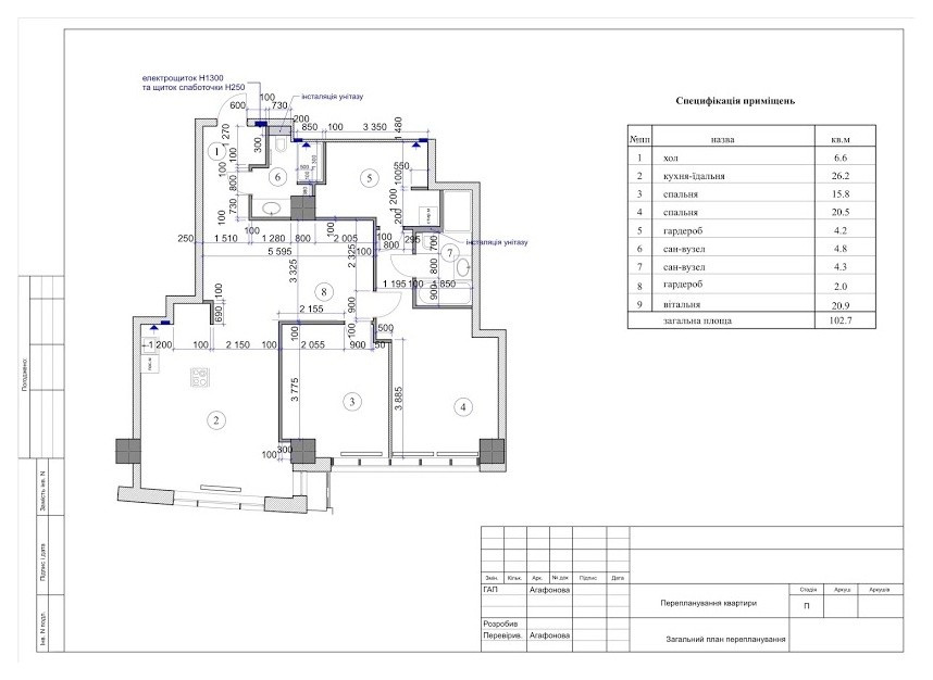
Апартаменты в престижном жилом комплексе премиум класса площадью 106 м². . Квартира выполнена в стиле легкого лофта, где преобладает материал дерево и стекло . холл, большая гардеробная, два санузла с ванной и гидромассажным душем, бытовая комната со шкафом куда спрятана сушильная, стиральная машина, просторная кухня студия которая с помощью раздвижной системы может быть как цельным пространством, так и делиться на комнату для просмотра домашнего кинотеатра и кухню. . Хозяйская спальня со своей гардеробной и санузлом, детская спальня, электрошторы, биокамин, мрамор на рабочей зоне кухни и кухонном острове. . Умывальники, ванна: Vileroy&Boch. . Сантехника черного цвета: итальянская фабрика Cristina. . Мебель: Elizabeth de la Vega. . Обеденный стол с применением эпоксидной смолы ручной работы. . Освещение: преимущественно точечные накладные светильники. . При входе фитостена с системой автоматического полива. . Пространство украшает специально нарисованные под заказ картины украинской художницы Leshko. . Акустика и система “домашний кинотеатр” - Kinothema, бренд Dali. . Срок работы над проектом: четыре месяца (было пересмотрено 43 варианта проекта). . Срок реализации компанией SKS: семь месяцев. . Год реализации компанией SKS 2018. .
28 фотографий




























