IRISH COFFEE. Фото реализованного проекта.
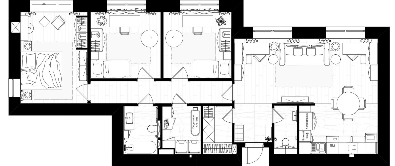
Стильный, светлый интерьер в роскошных светло-серых и шоколадных оттенках. Благородные материалы: паркетная доска, итальянские и немецкие ткани, бельгийские ковры, мебель из массива - здесь все про качество, основательность и стабильность. . . Неуклюжей казалась планировка квартиры перед тем как за нее взялись мы. В первую очередь оптимизировали когда-то бесполезное пространство: избавились от коридора длиной почти 19 м и разделили на общественную и приватную зоны. . . Сердце квартиры - кухня-гостиная с мягкой . и обеденной зонами. Здесь расположился вместительный кухонный гарнитур со всей необходимой техникой и аксессуарами и даже небольшой винный шкаф. . . Вход в гостевой санузел перенесли в прихожую, - . так комфортнее всего. . . Детские комнаты для двух мальчиков в зеркальных расстановках со всем необходимым для братьев. . . В спальне - удобная широкая кровать, гардеробный шкаф и туалетная подвесная консоль для очаровательной хозяйки. . . В квартире есть постирочная комната, по запросу клиентов, в которой мы размести оружейный сейф, стиральную и сушильную машины, гладильную систему. . Водонагреватель спрятали в шкаф, где также предусмотрели место для уборочного инвентаря. . . Стильный интерьер в светло-серых и шоколадных оттенках получился выдержанным и элегантным. . .
10 фотографий









