Интерьер квартиры в скандинавском стиле ("Садовые кварталы")
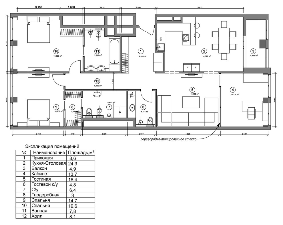
Задачей было сделать светлый, воздушный интерьер со свободной планировкой в зоне гостиной, столовой, кухни. Квартира в элитном комплексе "Садовые кварталы" предназначалась для молодой девушки. Общая площадь квартиры 135 кв.м.
Год реализации: 2017
11 фотографий












