Интерьер коттеджа в Словении
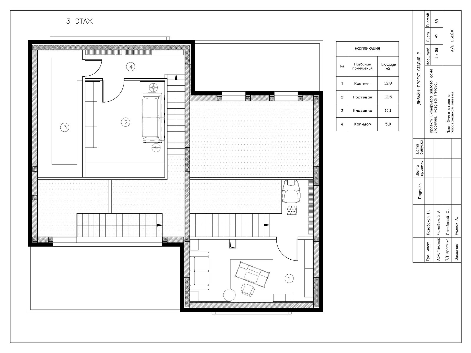
Проект интерьера дома для семьи из четырех человек. Пространство расположено в трех уровнях. Часть комнат находятся под наклонной крышей. Решение в светлых тонах с хорошим дополнительным световым дизайном.
Год реализации: 2015
22 фотографии






















