Индивидуальный жилой дом DOMUS
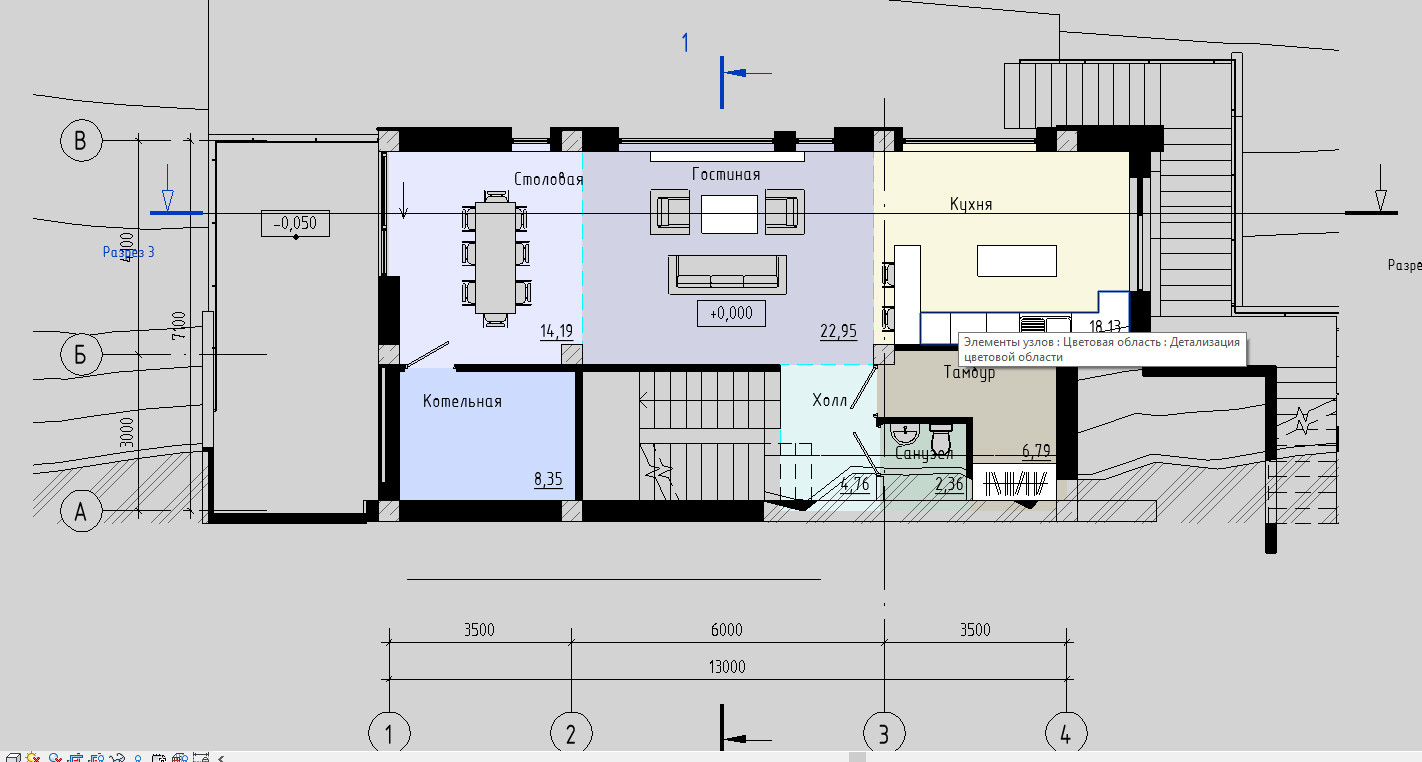
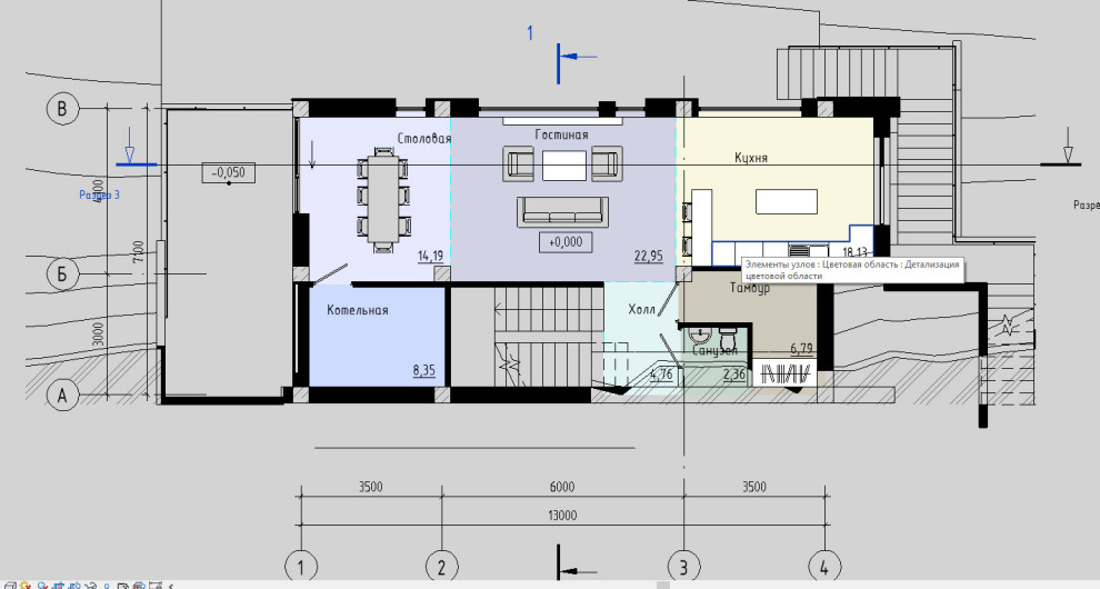
По конструктивному решению здание относится к рамным каркасным зданиям из монолитного железобетона. Общая площадь всех помещений: 260 м2
Год реализации: 2021
9 фотографий
По конструктивному решению здание относится к рамным каркасным зданиям из монолитного железобетона. Общая площадь всех помещений: 260 м2
9 фотографий
