Индивидуальный одноэтажный жилой дом с плоской кровлей
Одноэтажный жилой дом с большой террасой
Год реализации: 2022
Стоимость проектирования: 135 000 ₽
г Ставрополь, ул Турбина
12 фотографий
Одноэтажный жилой дом с большой террасой
12 фотографий

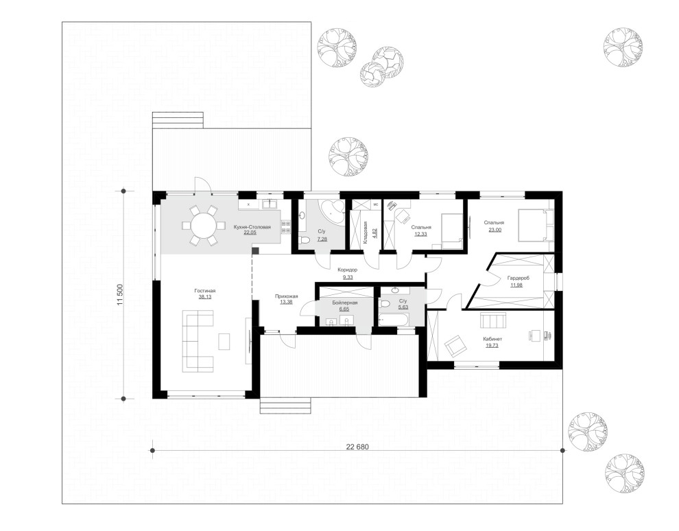
Одноэтажный дом с двумя спальнями и кабинетом
Мебелировка спален
Зонирование и мебелировка студии 30 м2
Перепланировка двухкомнатной квартиры 54м2
Одноэтажный дом с двумя спальнями, кабинетом и кухней-гостиной
Двухэтажный дом с игровой, двумя кабинетами и тремя спальнями
Двухэтажный дуплекс площадью 180 м2