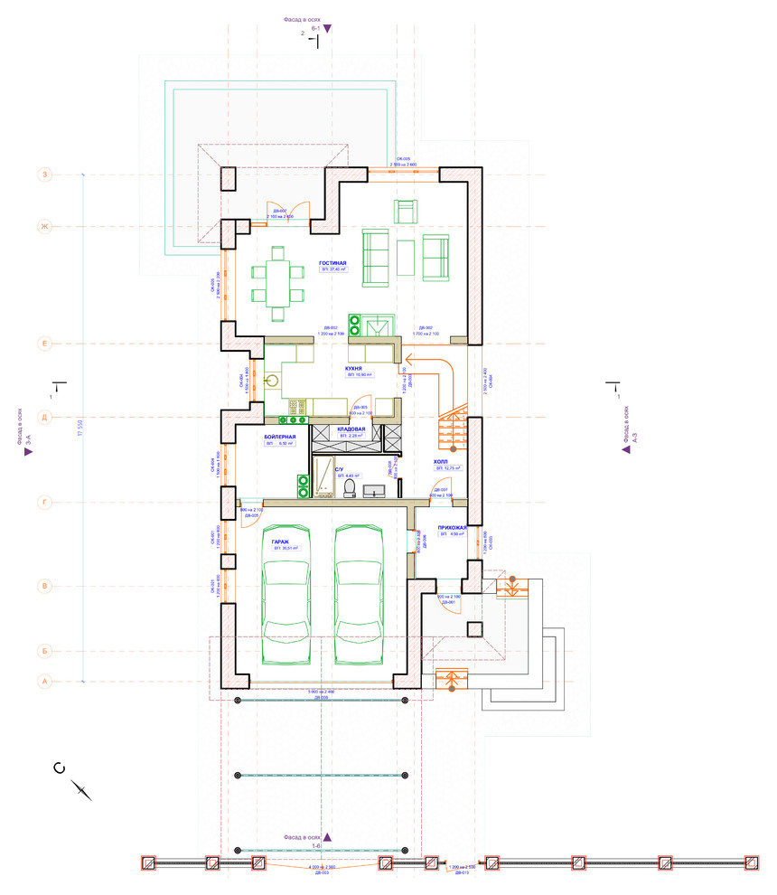
Индивидуальный коттедж 209м2
Коттедж двухэтажный с мансардной для семьи из 3-4 человек. . . Спальня - 3шт . Кухня . Гостиная . Ванна - 2шт . Гараж . Открытая терраса . Крытая парковка . . Площадь 1 этажа - 115м2 . Площадь 2 этажа - 94м2
Год реализации: 2017
Стоимость проектирования: 34 999 ₽
7 фотографий








