"Грета" в Рязанской области
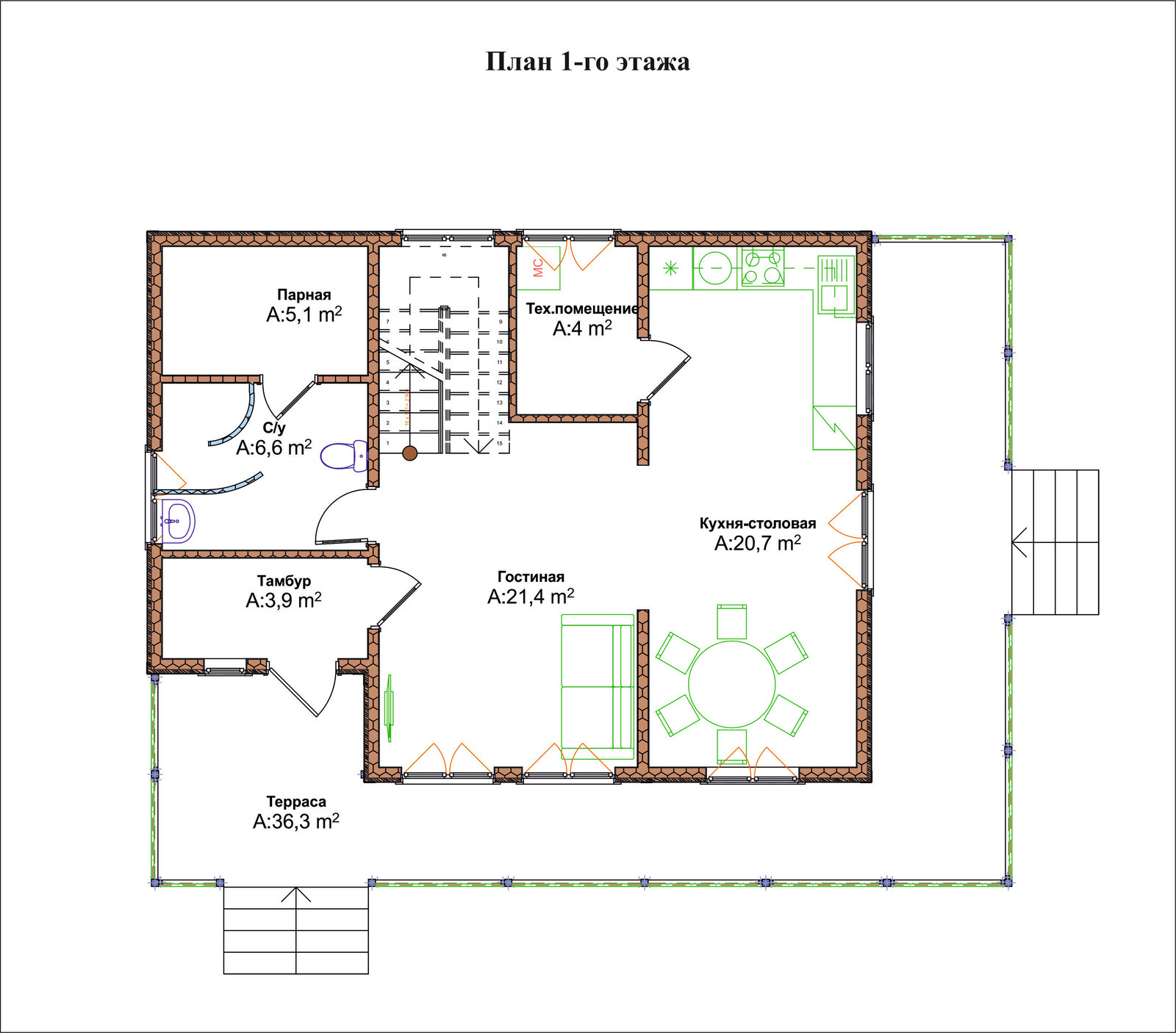
Заканчивается строительство дома по каркасной технологии в Михайловском районе Рязанской области. Фундамент железобетонный ленточный.
Год реализации: 2017
6 фотографий
Заканчивается строительство дома по каркасной технологии в Михайловском районе Рязанской области. Фундамент железобетонный ленточный.
6 фотографий
