Granville
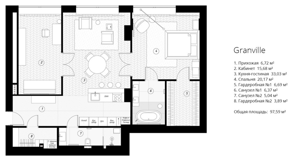
Общая площадь: 97,59 м² . Местоположение: Санкт-Петербург . Над проектом работали: Ксюша Школьникова, Денис Красиков, Ринат Бикбаев . . Проект квартиры для молодой пары. Перед нами стояла задача создать интерьер, сочетающий в себе современное прочтение классических элементов и минимализма. Квартира должна получиться просторной и светлой, без лишнего нагромождения предметов. . . Мы пересмотрели стандартную планировку от застройщика, оптимизировав пространство под наши задачи. Нам удалось задействовать каждый квадратный метр помещения, снабдив его всеми необходимыми функциями. В объединенном пространстве кухни-гостиной мы выделили еще одну комнату, которая стала кабинетом. В спальне создали приватную зону с гардеробной и ванной комнатой. В коридоре избавились от лишних углов. . . Вся квартира выдержана в едином стиле. Дизайн строится на сочетании классических элементов в отделке с современными лаконичными предметами интерьера. Классический рисунок молдингов на белых стенах, распашные двери с филенками, паркет шеврон и мрамор добавляет пространству благородства. Декор практически не используется, вся мебель современная и простая. Встроенные шкафы, по просьбе заказчиков, есть только на кухне. За свет отвечают споты и современные минималистичные светильники, которые притягивают взгляд в каждом помещении. Преобладают три основных цвета - белый, черный и цвет натурального дерева. . . Мы считаем, что справились с поставленной перед нами задачей. Нам удалось создать простой функциональный, но при этом красивый интерьер, который идеально подходит для современной квартиры в центре Санкт-Петербурга.
32 фотографии

































