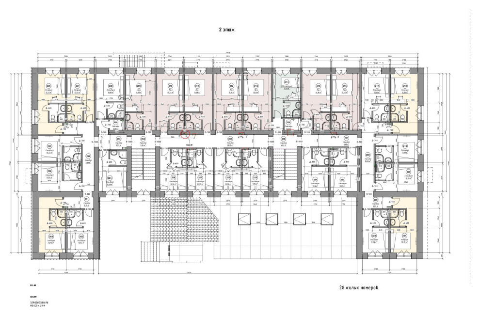
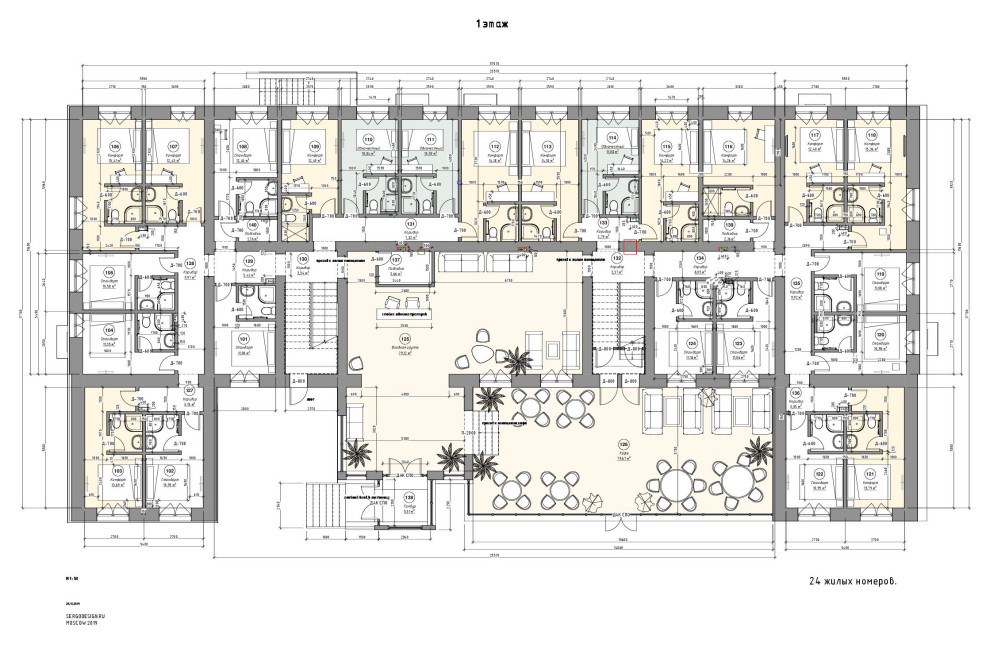
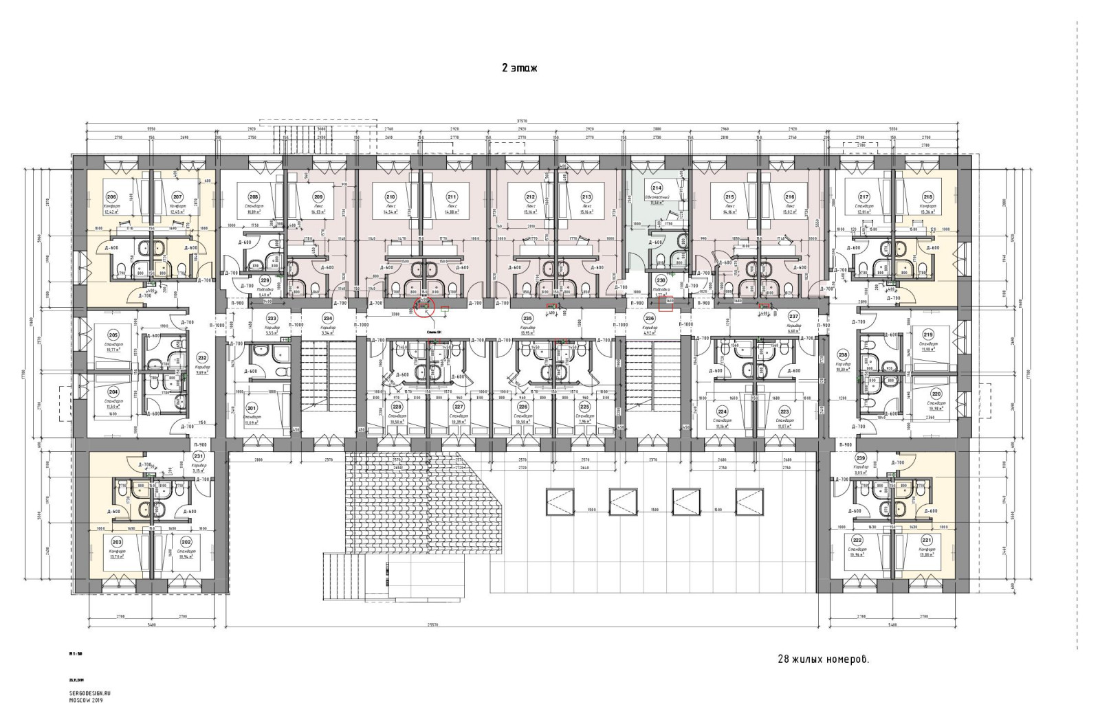
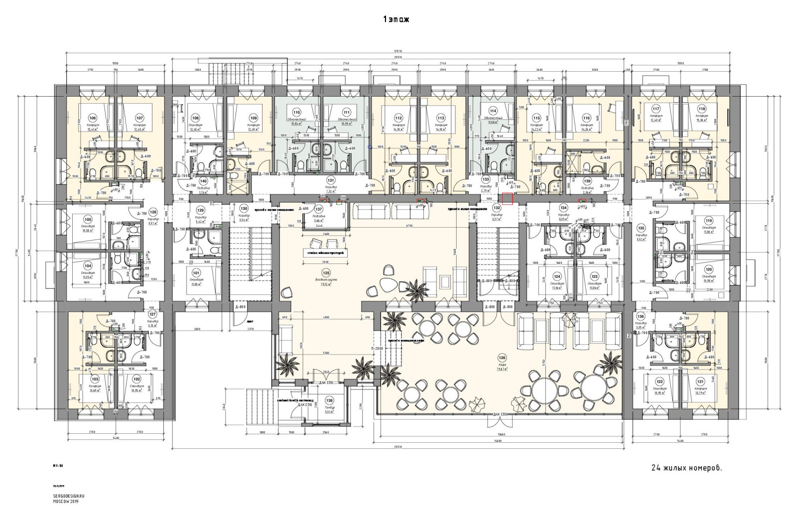
Гостиница на 115 номеров с кафе и баром
Проект реконструкции существующего офисного здания для организации гостиничного бизнеса. Надстройка мансардного уровня. 115 жилых комнат. Кафе-ресторан в первом этаже и бар в цокольном этаже. Планировочные, конструктивные решения и дизайн интерьеров. . Reconstruction project of an existing office building for the organization of the hotel business. Attic level superstructure. 115 living rooms. Cafe-restaurant on the ground floor and bar in the basement. Planning, constructive solutions and interior design.
Год реализации: 2019
Стоимость проектирования: 525 000 ₽
г. Москва
11 фотографий












