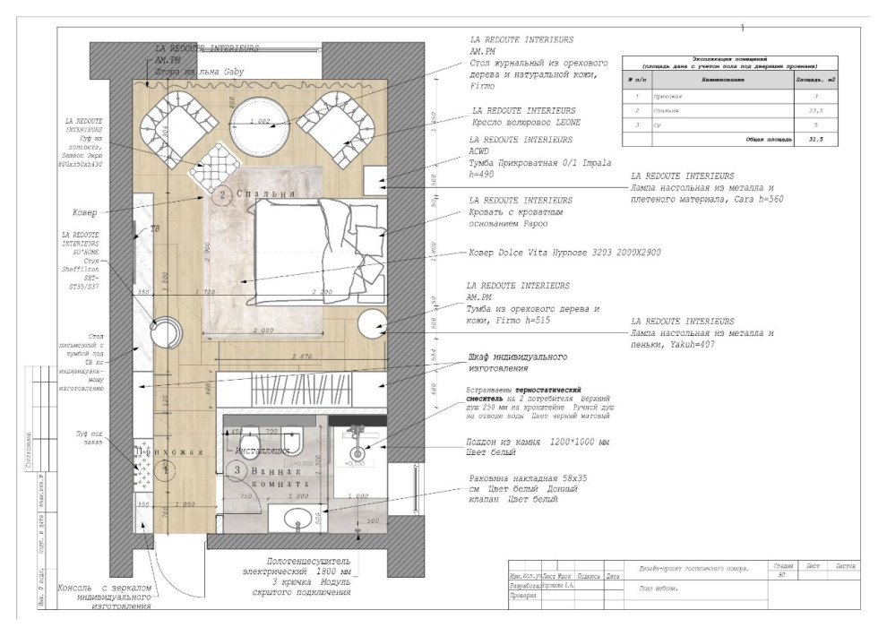
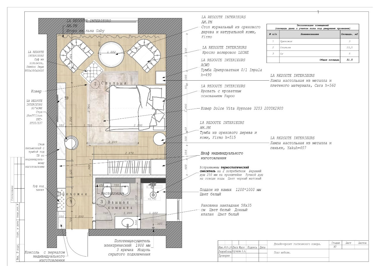
Гостиничный номер. Ember
Гостиничный номер подразумевает удобное компактное расположение основных зон. Цветовой решение и максимально уютное для восприятия.
Год реализации: 2024
г. Новосибирск
5 фотографий
Гостиничный номер подразумевает удобное компактное расположение основных зон. Цветовой решение и максимально уютное для восприятия.
5 фотографий
