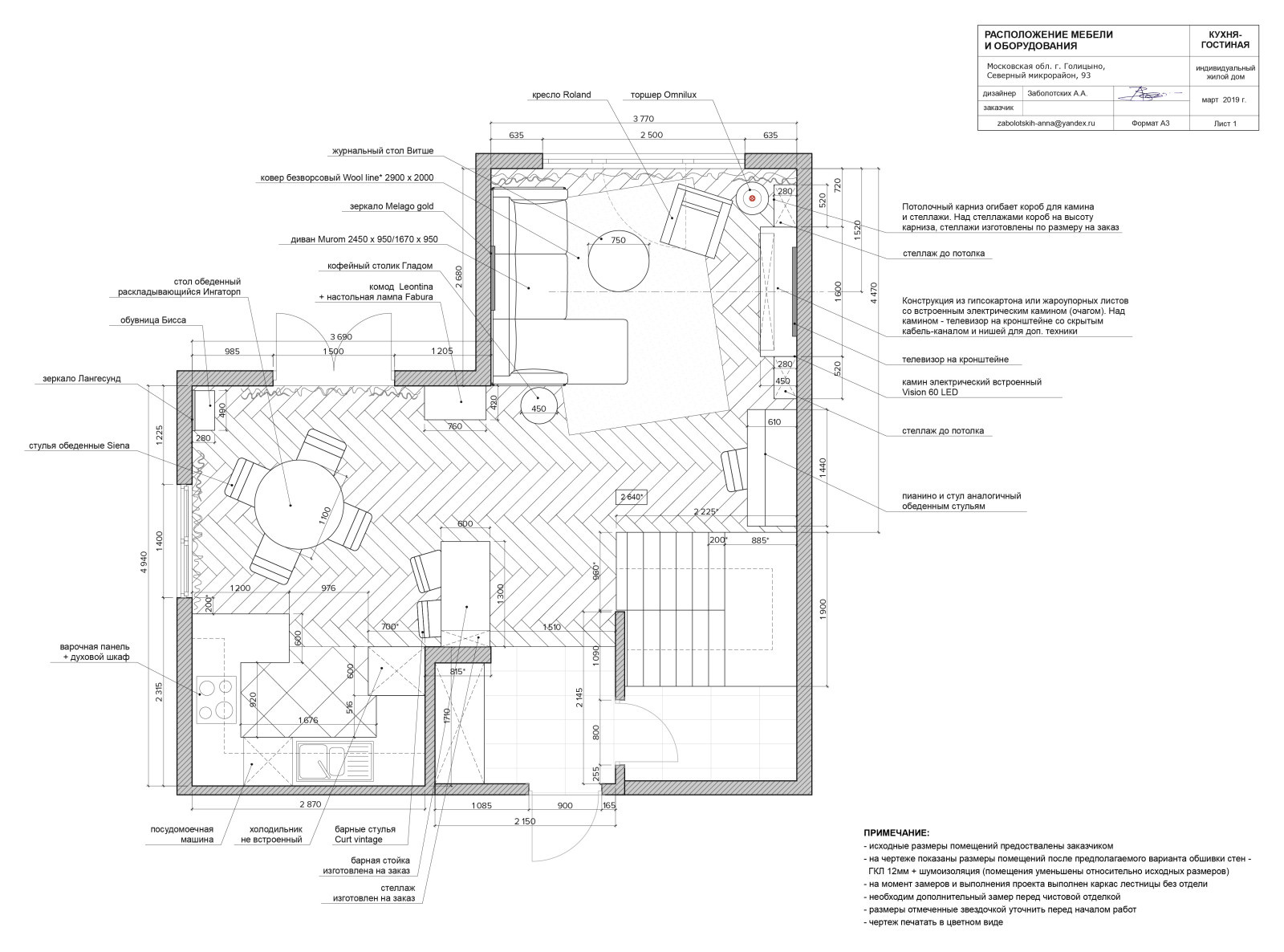
Гостиная и кухня-столовая в загородном доме
Для небольшого загородного дома в Подмосковье было выбрано гармоничное сочетание прованса и американского стиля. . . В основе цветовой палитры интерьера сочетание сочного, но мягкого оттенка зеленого и насыщенного коричневого. Разбавляют композицию оттенки бежевого и голубого. Акцент гостиной - зеленый диван и конструкция со встроенным электрическим камином. Отделяют гостиную от кухни барная стойка и столовая группа. . . Эскизный проект выполнен за два месяца, дистанционно, все переговоры проводились по электронной почте/сообщениям. Заказчик выбрал упрощенный вариант трехмерной визуализации - на изображениях предметы показаны линиями, без наложения текстур и дополнены коллажом из конкретных, подобранных предметов мебели и материалов. Такой вариант визуализации значительно уменьшает время выполнения и стоимость проекта.
8 фотографий








