Гостевой дом в пос. Красная Поляна
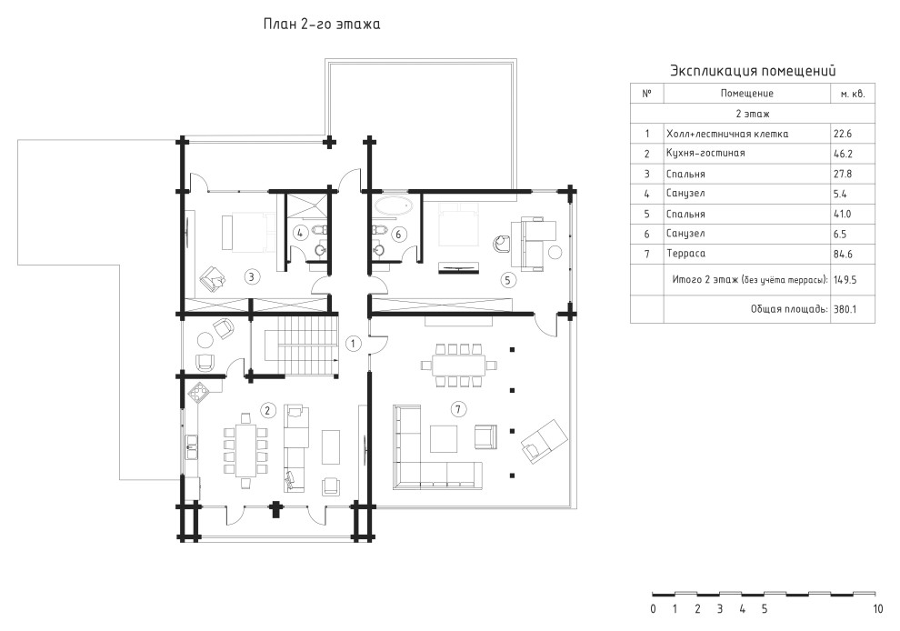
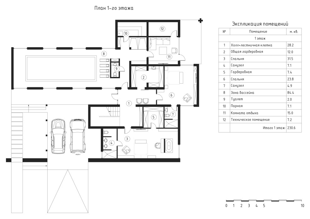
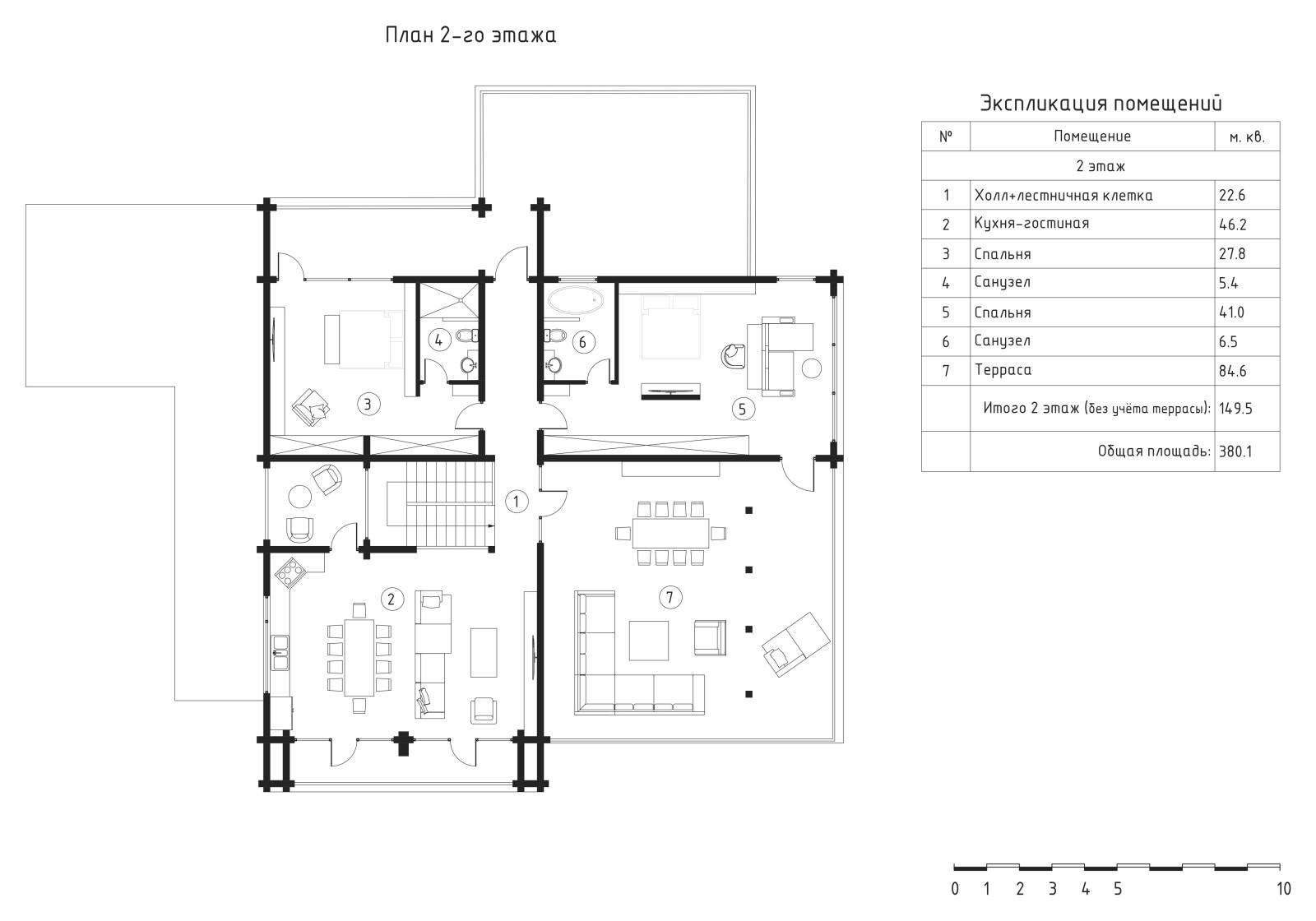
Гостевой дом в посёлке Красная Поляна рассчитан на единовременное пребывание компании 8-10 человек. Первый этаж выполнен в монолите и облицован плитами известняка крупного формата грубой и шлифованной фактур. В первом уровне размещены холл с просторной гардеробной и местом для хранения лыж и сноубордов, зона бассейна с сауной и комнатой отдыха, два спальных номера. Второй этаж выполнен из клеёного бруса. На втором уровне предусмотрены кухня-гостиная с высотой потолка 4,5 м., два спальных номера и 3 террасы, выходящие по разным сторонам света. Участок находится на охраняемой территории и не огорожен забором, вид из гостиной направлен в сторону панорамного горнолыжного склона, с другой стороны, участок примыкает к лесу и имеет свободный выход на территорию лесничества.
7 фотографий








