logo

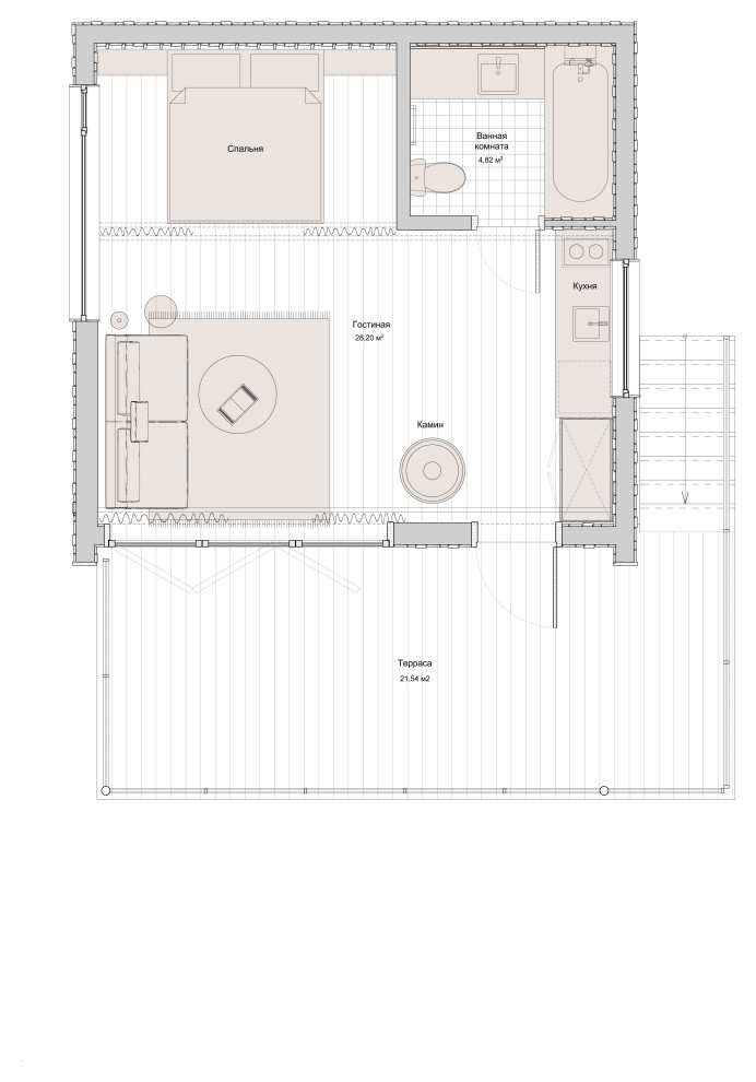
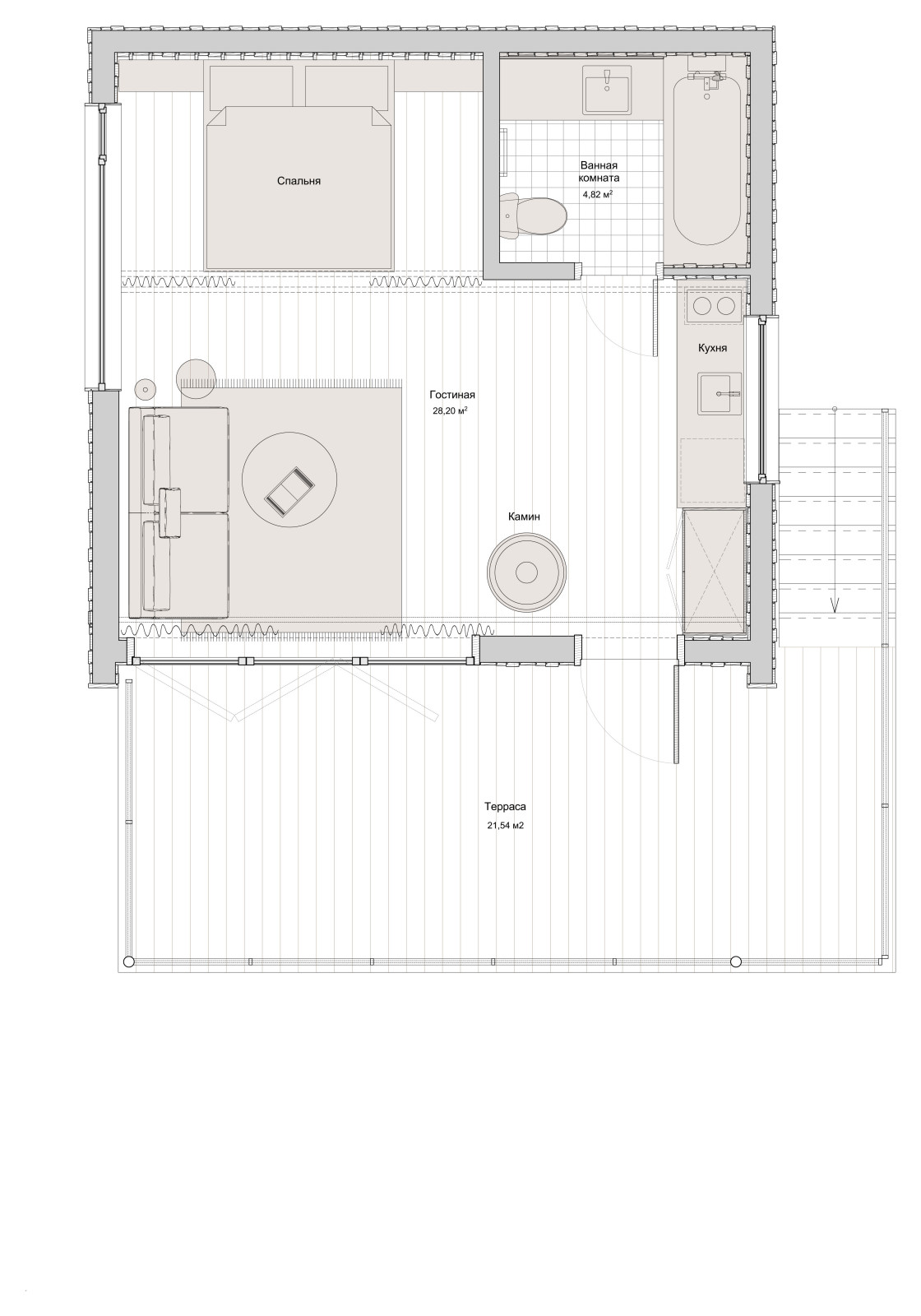
Гостевой дом "мини"

Год реализации: 2020
photo

10 фотографий

Гостевой дом "мини"
Гостевой дом "мини"
Гостевой дом "мини"
Гостевой дом "мини"
Гостевой дом "мини"
Гостевой дом "мини"
Гостевой дом "мини"
Гостевой дом "мини"
Гостевой дом "мини"
Гостевой дом "мини"
Гостевой дом "мини"
Гостевой дом "мини"
Гостевой дом "мини"
Гостевой дом "мини"
Гостевой дом "мини"
Гостевой дом "мини"
Гостевой дом "мини"
Гостевой дом "мини"
Гостевой дом "мини"
Гостевой дом "мини"
Фоновое изображение профиля Ольга Плещева
Фото профиля Ольга Плещева

Ольга Плещева

Дизайнеры интерьера