Гостевая квартира
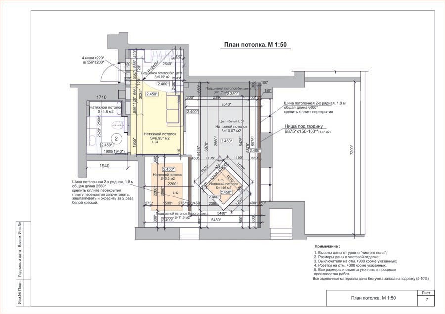
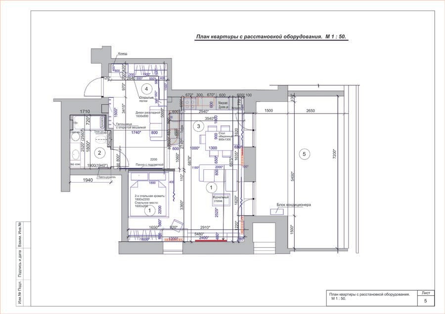
Проект квартиры для временного пребывания семьи в Екатеринбурге имеет несколько отличительных особенностей: объединение кухни и гостиной, компактная спальня, отделенная шторой и прихожая, являющаяся дополнительной жилой комнатой с предусмотренным местом для отдыха. Квартира прекрасно подходит для отдыха семьи и возможных гостей, при этом является максимально функциональной и просторной. Имеется небольшая рабочая зона рядом со спальней. Интерьер решен в едином стиле с использованием цветовых, световых и фактурных акцентов. . . Используемые отделочные материалы: . Полы - ламинат Tarket, коллекция Босфор, . В санузле - плитка от KERAMA MARAZZI : «Вилланела» , пол «Триумф , . Стены – обои под покраску . Дверь – фабрика «Волховец», коллекция Galat . Мебель в прихожей, кухня, мебель в санузле, шкафы-купэ – мебельная компания Вента . Столовая группа, диван, кровать - Хофф. . . Проект реализован в 2017 году. Автор проекта: Лариса Боярская . . Бюро 37/1 . https://www.b37-1.ru/ . Екатеринбург
22 фотографии






















