Городские тропики 45м кв
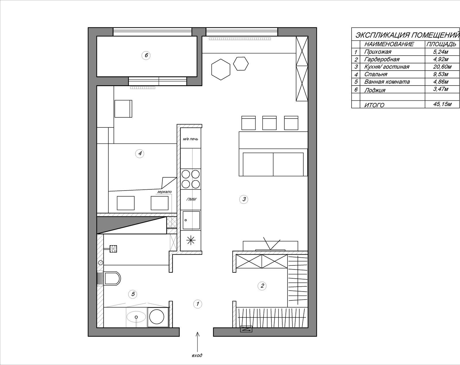
Для меня это особенный проект: я делала его для своей дочери-студентки. . Перед дизайнером стояла задача — спроектировать квартиру площадью 45 кв м так, чтобы учесть . пожелания и потребности молодой девушки: отдельную гардеробную, просторную гостиную, куда . бы могли приходить друзья, и уютную спальню. В результате перепланировки дизайнер . совместила гостиную и кухню, отделила спальню, не загромождая небольшое пространство . квартиры лишними дверьми. Ей также удалось сделать отдельную вместительную гардеробную. . Серый цвет — основа палитры интерьера. Дизайнер выбрала тропическую тему, чтобы внести в . проект яркие цветовые акценты. «Тропики» в текстиле, аксессуарах, посуде и живописи создают . настроение лета и веселья, что соответствует характеру будущей хозяйки квартиры. . Для визуального расширения пространства использовала зеркала. Так, дверные полотна . в ванную и гардеробную расположены напротив друг друга и имеют зеркальное покрытие. Если . открыть одну из дверей, создается оптический эффект — зеркальный коридор, который дает . возможность увидеть себя с разных сторон. Это функционально и удобно. . С 18 этажа квартиры открывается живописная панорама Петербурга, поэтому дизайнер решила . расширить подоконник и сделать его местом отдыха. Расширенная подоконная часть изготовлена . по индивидуальным размерам в столярной мастерской. Дизайнер украсила ее мягкими яркими . подушками и теплым пледом, создав отличное место, чтобы выпить кофе с утра или почитать . книгу вечером. . Зеркало во всю стену визуально увеличило комнату и создало эффект второго окна: так . пространство еще больше наполняется солнечным светом и естественно подчеркивает . «тропическую» атмосферу. . Яркий акцент в квартире — бирюзовый диван в бархатной обивке. К нему примыкает остров, . которым заменили стол. Это сердце комнаты, ведь сидя за ним удобно обедать, работать за . компьютером, смотреть телевизор или в окно. . Вместо привычной кровати дизайнер решила установить широкий подиум с выдвижными . ящиками для хранения. Он выполнен по индивидуальным размерам и занимает всю ширину . комнаты. Так получилось создать уютный уголок, в котором приятно проводить время и . комфортно спать. . Большое зеркало висит и в ванной комнате, чтобы визуально увеличить пространство. Под яркой . бирюзовой столешницей скрыты стиральная машина и бойлер. В душевой нет дверей, она лишь . частично отгорожена стеклом. Так душ напоминает водопад в тропическом лесу. . В результате удалось спланировать небольшую площадь квартиры так, чтобы в ней было комфортно . жить и не чувствовать себя в тесноте. И, что важнее, создать атмосферу жаркого «тропического . рая» и передать тепло, которого порой так не хватает в Санкт-Петербурге.
18 фотографий


















